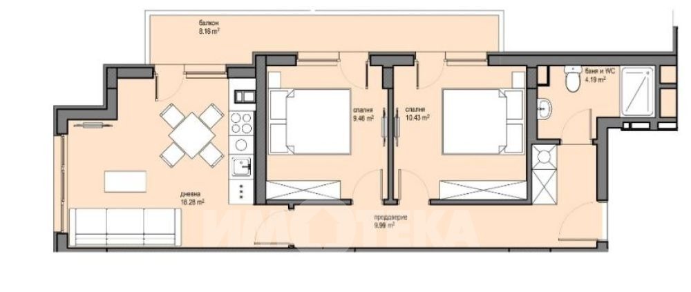
Тристаен апартамент със застроена площ от 68.49 кв.м. Състои се от: преддверие, трапезария с кухненски бокс, самостоятелни спални 2 бр, баня с тоалетна и балкон. Има възможност за закупуване на подземни паркоместа.
Намира се в югозападната част на столицата, в квартал 'Красна поляна'. Район в близост до училища и детски градини, като например 123 СУ 'Стефан Стамболов', ДГ 126 'Тинтява', 136 ОУ 'Любен Kаравелов' и други. Локацията предлага оптимална близост до новата метростанция 'Овча купел', което улеснява придвижването до Нов български университет и Софийски университет 'Св. Климент Охридски'. В близост има различи вериги супермаркети, фитнеси, болница 'Надежда' и пазар 'Росица'. Има добре изградена транспортна инфраструктура и се обслужва от всички видове градски транспорт: метро; трамваи 4, 11 и 22; автобуси 11, 60 и 83.
Осеметажна сграда с три входа. Нов дом на енергични хора, които не искат да се лишават от просторни и функционални разпределения разположени върху парцел от 3320 кв.м. Влаганите материали в строителството и доставчиците са доказали качеството си във времето. Акт 14 се очаква през месец Януари 2025 година.
Бърз достъп до центъра на град София и в същото време бягство от градската среда. Метростанция 'Овча купел'. Функционални разпределения. Развита инфраструктура. Добро и балансирано съотношение между качество и цена.
Обади се сега и цитирай този код 630006
Виж всички обяви в imoteka.bazar.bg или тук
        
       
         
         
         
         
         
         
         
             
             
             
             
             
             
            






