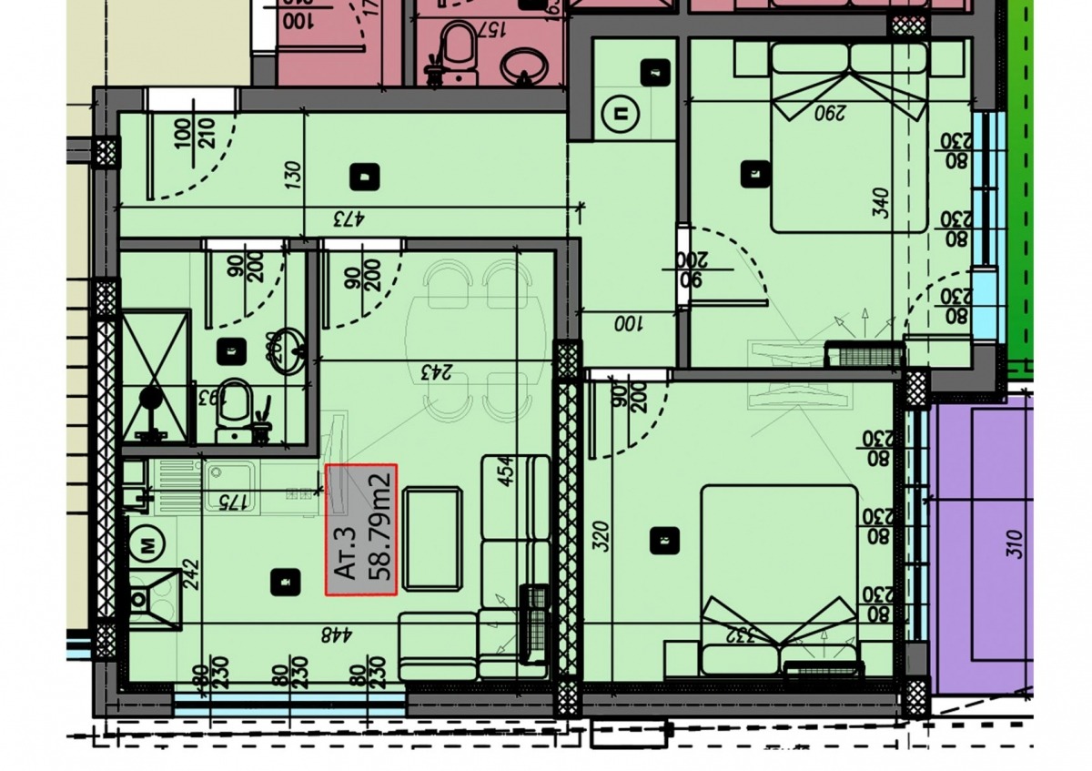
Ат. 3 е с застроена площ 58.79 м2, а с об.ч 66.11 м2., ситуиран на първи етаж, разполага с всекидневна с кухненска част, детска стая, родителска спалня, баня с WC и коридор. Излаз към въттрешен двор от едната спалня. Възможност за закупуване на гараж или външно паркомясто.
Сградата е разположена в горната част на квартала. В близост до хранителен магазин и детска градина, спирката на градския транспорт е на пешеходно разстояние. Инвеститора предлага гъвкава схема на плащане.
Виж всички обяви в shans2.bazar.bg или тук
        
       
         
         
         
             
             
            






