⭐ Този имот може да бъде закупен на разсрочено плащане чрез БИК без доказване на доход, дори при влошена кредитна история!
☎0899 664 660
🔴147 500
✅гр. Варна, кв. Аспарухово
✅Площ - 99 кв.м.
✅Изба
✅Етаж 2
❗ АКТ 16
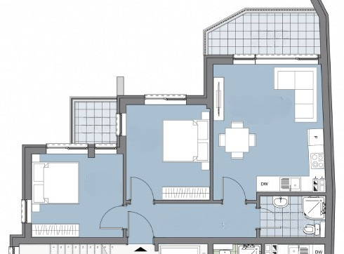
Имотът представлява : голямо входно Антре, просторна и светла Всекидневна с обособена кухненска част и излаз на тераса; уютна Спалня, втора спалня със собствена тераса, Баня и Тоалет.
Състояние : Имотът се издава съгласно БДС Екстериорна блиндирана врата. Под : нивелирана замазка подготвена за полагане на гранитогрес, паркет или настилка по Ваш избор. Стени : машинно обработена гипсова мазилка с турбозол подготвена за боя или тапет по ваш избор. Мокри Помещения : ръчно обработена циментова мазилка подготвена за полагане на фаянс и теракота .ВиК инсталация на тапа . ЕЛ инсталация : контакти, ключ и фасонки. МДФ интериорни врати и ПВЦ дограма .
Строителство : Висококачествено Ново Строителство стоманобетонна конструкция посрещащи всички норми за сеизмичност съгласно БДС . Монолитна зидария изпълнена с най-висок клас Австрийски керамични блокове на фирмата Wienerberger Porotherm 25 N+F Light . Висок клас ПВЦ 5-камерна дограма с 65мм профил и 24мм всесезонен стъклопакет . Топлоизолационна система BAUMIT ESP-60mm. Силикат-силиконова фасадна мазилка на фирмата BAUMIT с висока паропропускливост и самопочистващ се ефект.
Забележка : Приложените по-горе описания, снимки, скици, архитектурни разпределения и визуализации са илюстративни, те имат за цел да Ви дадат максимално добра и идейна представа за общия вид и разпределението на имота !
Като наш клиент получавате ексклузивен достъп до мрежата от експерти, които Ви осигуряват най-доброта сделка, а не просто оферта.
Комбинираме експертизата на брокери, юристи, финансисти, оценители, строители и дизайнери в единна, ефективна система, която прави сделките по-бързи, по-сигурни и по-изгодни.
Виж всички обяви в 360estate.bazar.bg или тук







