Предлагам Ви тристаен апартамент в кв. Южен,Пловдив
Нова сграда
Сградата има Акт 15, очаква се издаването на Акт 16 -март 25г.
Сградата е разположена в близост до магазин Billaдо бетонният мост с модерна Г образна форма.
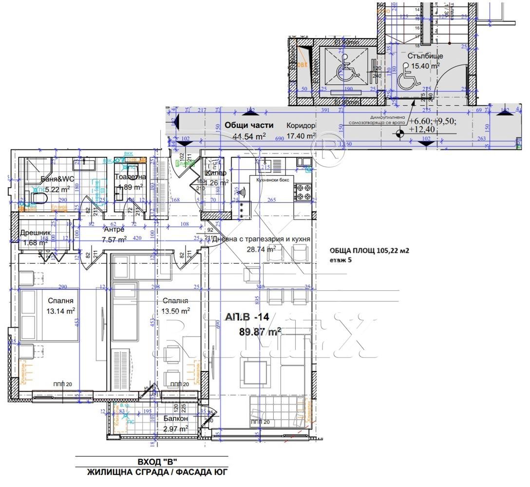
Апартамента се състои от антре, просторна всекидневна с кухненски бокс, две спални- едната от които с дрешник, една тераса, една тоалетна и една баня с тоалетна.
В близост има ясла, детски градини и училища.
Апартамента е на пешеходно разстояние от централна гара.
Очаква се новият пробив под гарата да излиза точно до сградата.
Изложение- юг.
Площ 105.22 кв.м
Цена 157 000Е
Виж всички обяви в rimex.bazar.bg или тук
        
       
         
            






