🏠 **Продава се комфортен тристаен партерен апартамент с дворче в София, кв. Дружба 1**
Този изискан двустаен апартамент предлага перфектната възможност за нов модерен дом в един от най-динамичните райони на София. Сградата е ново строителство, започнато през 2025 г., и обещава комфорт и удобства, съответстващи на съвременния начин на живот.
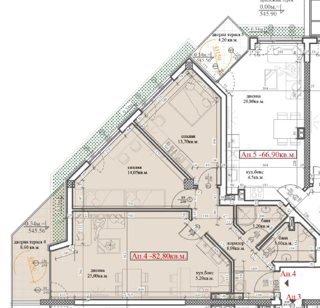
💰 **Цена:** 175,500
📏 **Обща площ:** 82.80 кв.м.
Апартаментът се състои от следните функционални и добре организирани пространства:
- 🌟 Просторна и светла всекидневна, идеална за семейни събирания и моменти на релакс.
- 🛌 Две спални, предлагаща спокойствие и комфорт за добър нощен сън.
- 🍳 Модерна кухня
- 🛁 Баня
Локацията на блока е с лесен достъп до метро и летище София, както и бърз достъп до изходите на АМ
Тракия и АМ Хемус . Районът е богат на детски градини и училища и супермаркети. В близост се намира и парк Дружба и
Дружбенското езеро . Седем етажната сграда предлага функционално проектирани пространства, с разчупен характер, които
дават възможности за нестандартно планиране и декориране. Апартаментите са просторни с изобилието от естествена светлина.
На кота -3.55м. Сутерен / подземно ниво се стига рампа, която преминава в обслужваща вътрешна двупосочна улица на
разработен подземен паркинг с 35 /тридесет и пет/ паркоместа.
На кота -0.34м. Партер от североизток е осигурен достъпен подход към сградата и външен паркинг с 7 паркоместа с
директен достъп от съществуващата улична мрежа.
🏢 Стълбищната клетка е проектирана с асансъор до 630кг и двураменни
стълби с светла широчина 120см. Естествено осветление на клетките е подсигурено от североизток. Стълбите и асансьорът
осъществяват връзка с всички нива на сградата от кота -3.55м. до кота +13.86м.
На партерно ниво са проектирани общо 6 /шест/, различни в планово отношение жилища. На същата кота е предвидено и
помещение за детски колички и велосипеди, в непосредствена близост с входното пространство. Секцията има самостоятелно
помещение за главните електромерни табла с директен външен достъп.
На коти +2.50м.,+5.34м.,+8.18м.,11.02м. Първи, Втори, Трети и Четвърти етажи са проектирани по 7 /седем/ различни в
планово отношение жилища. Терасите на жилищата са със светли размери мин.150/150см и парапети с височина 105см.
На кота +13.86м. Мансарда I, се предвиждат 6 /шест/ жилища в две нива - мезонети.
На кота +16.66 м. Мансарда II в подпокривното пространство на сградата са проектирани вторите нива на жилищата мансарда.
🌟 При проявен интерес не се колебайте да се свържете с нас !
Код на обявата : 365801
Виж всички обяви в premierimotisf.bazar.bg или тук







