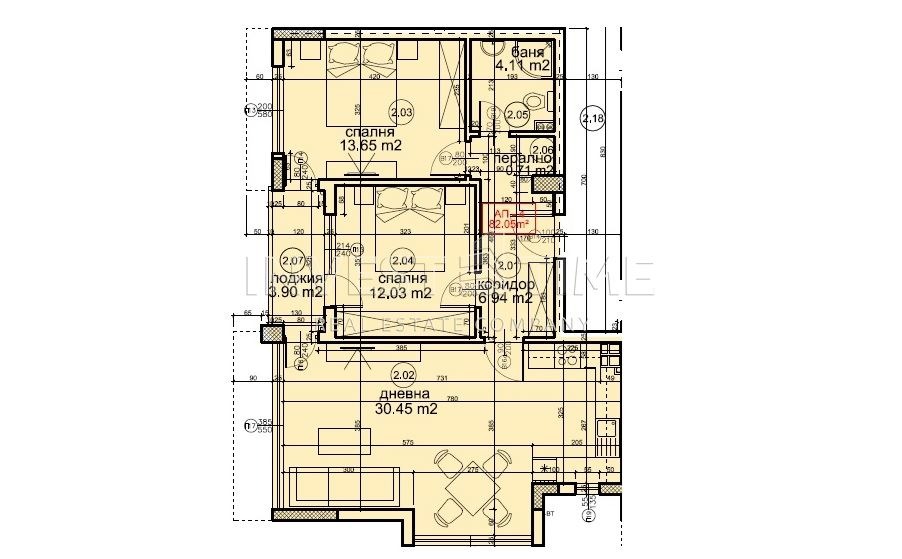
Жилището се намира в новопостроена жилищна сграда с Акт 16, разположено на втори етаж и е с площ от 104 кв.м. Имотът разполага със следното разпределение: коридор, дневен тракт с площ от 31 кв.м, две спални с площ 12 и 14 кв.м, лоджия с излаз от трите помещения, перално, санитарен възел. Към апартамента има прилежаща маза, осигуряваща допълнително място за съхранение. Възможност за закупуване на паркомясто.
Локация: Район Бриз във Варна е предпочитано място за живеене, разположено в близост до Морската градина и с лесен достъп до центъра на града.
За повече информация и организиране на огледи: Александър Николов - 0884301555
Виж всички обяви в investtime.bazar.bg или тук







