Характеристики на имота: Апартаменти: Четири просторни и функционални апартамента с една или две спалн.
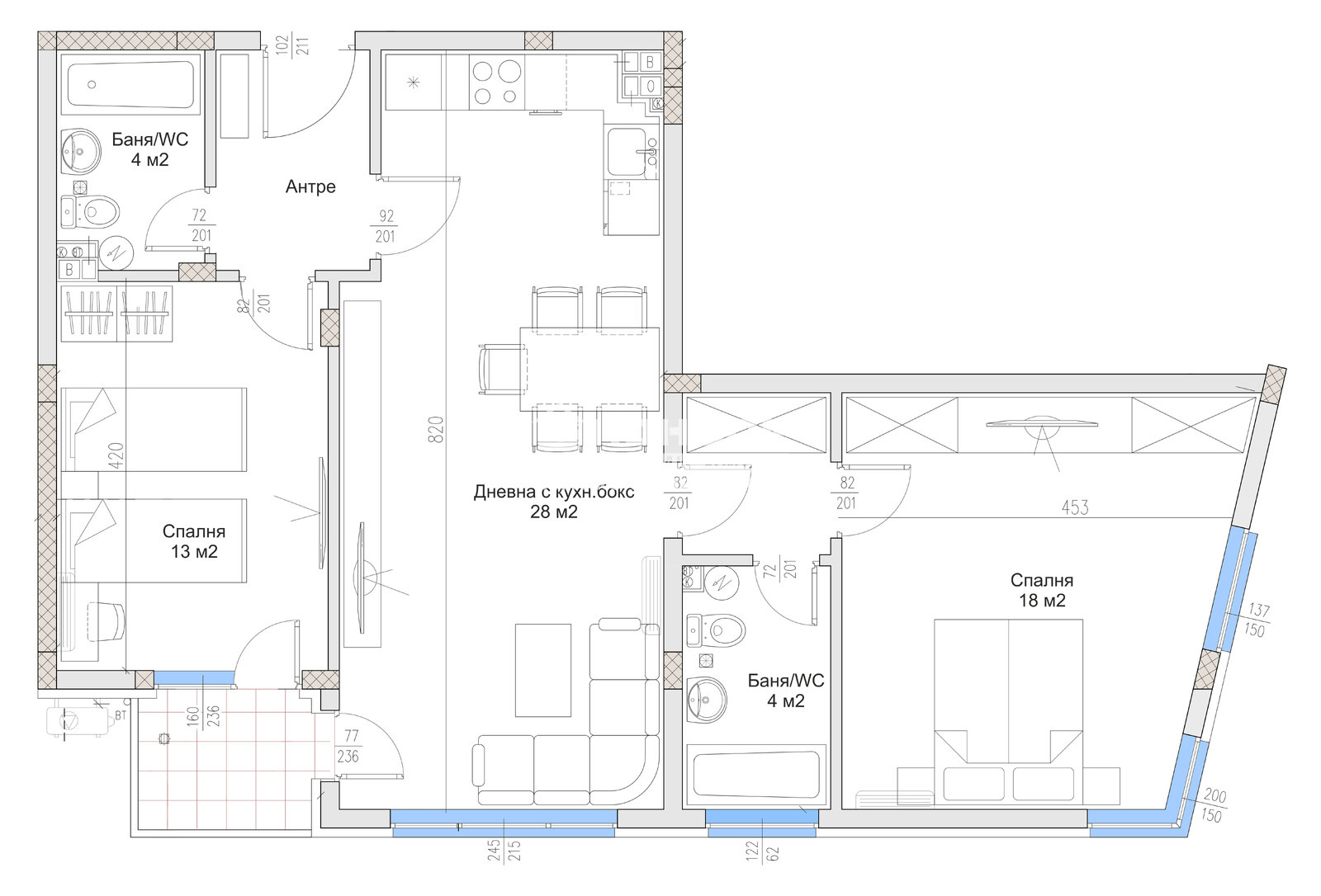
Разпределение: Простоорен триристаен апаратмент с южно изложение, състои се от дневна 28кв.м. с кухненски бокс и трапезария и излаз на обща тераса, две големи спални: 13 и 18 кв.м., две бани с тоалетна и входно антре с място за гардероб.
Панорама: Неповторима гледка към града и емблематичния хълм Бунарджик.
Паркиране: Осигурени 100% паркоместа за всички апартаменти комфорт и удобство за собствениците.
Локация: Тиха и спокойна улица, в близост до паркови зони, но и с лесен достъп до централните части на града.
Сградата е идеална както за инвестиция, така и за лично ползване, предлагайки лукс, спокойствие и уют. Не пропускайте възможността да притежавате този уникален имот в едно от най-желаните кътчета на Пловдив!ВИЖТЕ ОЩЕ ИЗГОДНИ ОФЕРТИ НА https://www.kondorimoti.com/ С ЕЖЕДНЕВНА АКТУАЛИЗАЦИЯ!
Виж всички обяви в kondor.bazar.bg или тук







