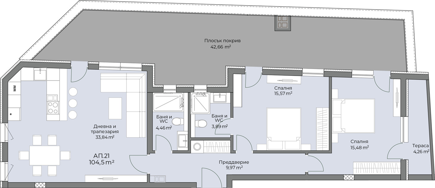
Имотът е ситуиран на 4-ти жилищен етаж и разполага със застроена площ от 105, 35 кв.м. разгърната в следното разпределение: входно антре, хол с кухненски бокс, две спални, две бани с тоалетна, килер и две тераси.
Жилището разполага с електрическо отопление и изолация, осигуряващи енергийна ефективност и комфорт през всички сезони. Допълнително към имота има и изба, която предоставя място за съхранение.
Степен на завършеност: Акт 14
Изложение: Запад
Съчетание от съвременна архитектура, функционалност и удобна локация правят този имот идеалният избор както за живеене, така и за инвестиция.
За оглед на това и други атрактивни предложения, не се колебайте да ни потърсите на посочения телефон или да ни изпратите данните си чрез формата за запитване на сайта.
Реф. номер: 63145
Виж всички обяви в titan.bazar.bg или тук







