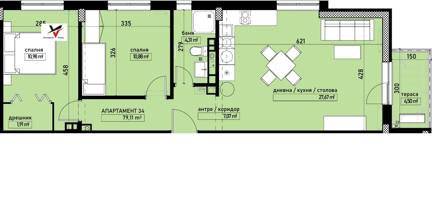
LV Investment Group представя на своите клиенти ТРИСТАЕН апартамент с изложение ЮГ/ИЗТОК и следното разпределение:
-дневна с кухненски бокс
-две спални(едната, от които има собствен дрешник)
-баня с тоалетна
-тераса.
Към апартамента има прилежащо мазе, включено в цената, с квадратура от 2,51 кв.м.
Сградата се намира на ул. Народно хоро 51, 300м. от НБУ и 700м. от метростанция Мизия. Локацията на сградата е на много комуникативно място, в близост до училище, детска градина и спирка на градския транспорт.
Отоплението ще бъде на ГАЗ.
Предвиденият срок за акт 16 - юни 2027г.
В сградата се предлагат и други едностайни, двустайни и тристайни апартаменти с възможност за закупуване и на гараж или паркомясто.
Степен на завършеност на апартаментите:
- стени и тавани машинна гипсова мазилка 'Рьофикс';
- под: циментова замазка;
- ел. инсталация: с монтирано ел. табло;
- входна врата: луксозно, релефно CPL покритие - дървесен декор; италианска патронна тристранно заключваща брава с включена защита на SECUREMME , усилена метална каса, изработена от стомана с дебелина 1.5 mm.
Етап на строителство: кота 0
Предлагаме и съдействие за кредитиране.
За повече информация и огледи:
0895989840 - Лия Цветкова
Виж всички обяви в lvinvestmentsf.bazar.bg или тук

