Translations in other languages:
All real estate ads published on imot.bg have been translated into English and published on the partner site
Получихте нова обява по филтър





Промяна на цена на наблюдавана обява


стара цена
нова цена
imot.bg – обяви за продажби и наеми на имоти
Сайт за имоти №1
Translations in other languages:
All real estate ads published on imot.bg have been translated into English and published on the partner site
ДОБАВИ ОБЯВА Редакция на обява
Начало Публикуване Търсене Нови сгради Агенции Новини Кредити + Още... Моят имот
Продава 3-СТАЕН
град София, Витоша
259 000 €
506 559.97 лв.

(2 398 €, 4 690.08 лв./m2)
Цената е без ДДС
Коригирана в 10:15 на 3 септември, 2025 год.
Обявата е посетена 380 пъти.
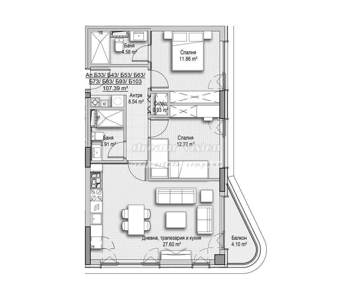
Площ:
108 m2
Етаж:
5-ти от 18
Газ:
ДА
Строителство:
Тухла, Ще бъде въведен в експлоатация 2027 г.

Описание на имота:


ДРИЙМ ВИЖЪН НЕДВИЖИМИ ИМОТИ Продава тристаен апартамент в кв. Витоша. Жилището се намира в комплекс от две сгради, разположени на място с бърз достъп до основните транспортни артерии в близост до автобусни спирки, детски градини, училища и Зоопарк София. Жилището се състои от входно антре, дневна с кухненски бокс, две спални (едната разполага със самостоятелна баня с тоалетна), втора баня с тоалетна,склад, тераса. Отоплението в апартаментите е решено с газови котли и подово отопление със серпентини и отоплителни тела лири за санитарните възли. Охлаждането през летните месеци ще се осъществява посредством инверторни климатици. При по-високите етажи на сградите , отоплението и охлаждането е решено чрез инсталация, състояща се от термопомпи , подово отопление и вентилаторни конвектори за стенен монтаж. Комплекса ще разполага с видеонаблюдение и денонощна охрана на входа на сградата. Сигурността и удобството на живущите ще е гарантирано с контрол на достъпа до подземните нива и входовете на сградите. Предлагаме и други апартаменти в сградите. Луксозно и качествено строителство от ДОКАЗАН СТРОИТЕЛ. Оферта в агенцията 10488. Всички наши обяви ги работим с колеги. Още наши оферти може да намерите на www.dreamvision.bg Телефони за връзка: 02/421 96 35 ; 0886 13 22 91 Димитър Георгиев.
Виж всички обяви в dreamvision.bazar.bg или тук
Особености
Тухла
Асансьор
С гараж
С паркинг
Интернет връзка
Видео наблюдение
Контрол на достъпа
Саниран
Възможност за дан. кредит
За контакт:
02/421 96 35
Брокер:
Димитър Георгиев
02/421 96 35; 0886 13 22 91
Още оферти от брокера: Продава | Дава под наем | Купува | Наема
Агенция:
ДРИЙМ ВИЖЪН НЕДВИЖИМИ ИМОТИ
02/421 96 35; 0886 13 22 91
ДРИЙМ ВИЖЪН НЕДВИЖИМИ ИМОТИ logo
Медал за прослужено време
В imot.bg от 2011 г.
dreamvision.imot.bg
Адрес:
област София, гр. София, бул.Цариградско шосе 39, етаж 1
http://www.dreamvision.bg
ИЗПРАТИ ЗАПИТВАНЕ
ИЗПРАТИ ЗАПИТВАНЕТО

Продава 3-СТАЕН
град София, Витоша
Обява: 1c173340271146122

259 000 €
506 559.97 лв.
(2 398 €, 4 690.08 лв./m2)

Цената е без ДДС
ЗАПАЗИ ОБЯВАТА

Местоположение: град София, Витоша

Виж още имоти от София или още Тристайни Апартаменти в София
Допълнителни данни за имотите в района и сравнение с други райони: Търсене в АРХИВ 2013 - 2025 г.











Добави/редактирай
вид имот и район
*Средните цени са определени чрез медиана стойност.
Още обяви в imot.bg
КОНТАКТИ | SMS КОДОВЕ | СТАТИСТИКА | ПОМОЩ | ОБЩИ УСЛОВИЯ | РЕКЛАМА | ТОП ОФЕРТА | Въпроси и предложения към imot.bg
Резон Медия | Имоти | Автомобили | Работа | Новини | Обяви | Преводи и легализация 2002-2025 ® Copyright imot.bg
© imot.bg ползва и препоръчва хостинг услугите на Bulinfo.net
Следвайте ни в: