Продажбите са БЕЗ КОМИСИОНА от купувача!
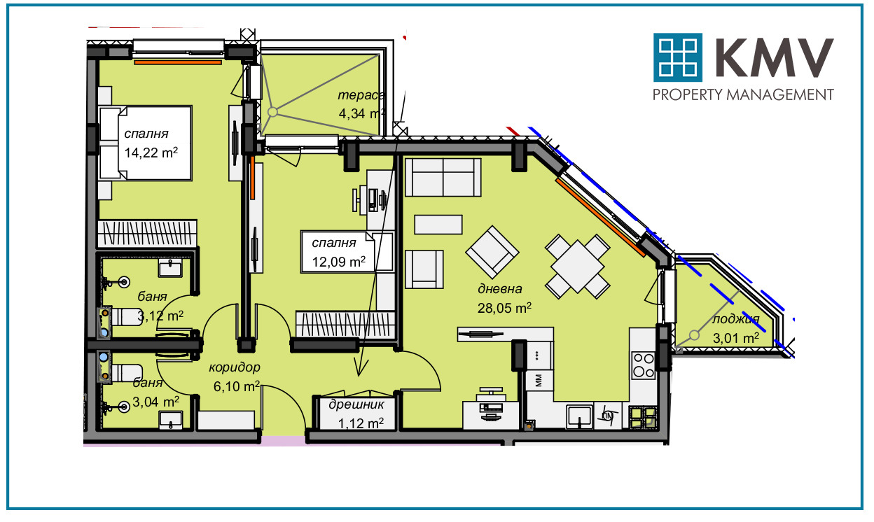
Имотът, който предлагаме се намира 7-ми етаж, застроената му площ е 91,27 кв.м. изложението на имота изток/север, а разпределението му е както следва: входно преддверие, всекидневна с кухненски бокс /28 кв.м./, две спални /12 и 14 кв.м. /, едната от които със собствена баня, втора баня с тоалетна, дрешник, тераса и лоджия.
Местоположението на сградата е в непосредствена близост до Бизнес Парк София, метростанция Бизнес Парк , спирки на градски транспорт, магазини Кауфланд , Фантастико и Технополис , заведения, детски градини, парк и други удобства. Локацията е в близост до бул. Александър Малинов и Околовръстен път, които осигуряват бърз достъп с другите части на столицата.
Предлагаме и други 2-ни, 3-ни и 4-ри стайни апартаменти за продажба в сградата, на различни етажи и изложения.
Предлагаме разсрочена схема на плащане, обвързана с достигнат етап на строителство:
Депозит: BGN 5000
20% при пoдписване на Предварителен договор
50% при завършен груб строеж АКТ образец 14
20% при Акт 15
10% при АКТ 16
За допълнителна информация и въпроси се свържете с наш консултант на телефон:0878 300 560
Виж всички обяви в kmv.bazar.bg или тук
        
       
         
         
         
         
         
         
         
         
             
             
             
             
             
             
             
            


