Планиран Акт 16 до края на 2025 г.
Представяме за продажба тристаен апартамент в нова сграда в процес на строителство, на 400 метра от Северния плаж в Приморско.
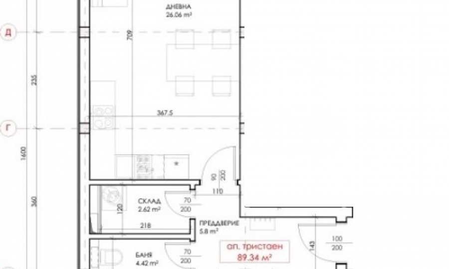
Имотът е с обща площ от 99,63 кв.м, разположен на 2-ри етаж с гледка към града и морето.
Разпределение:
антре;
дневна с кухня;
спалня;
втора спалня;
баня с тоалетна;
склад;
две тераси.
Издава се в степен на завършеност по БДС, на шпакловка и замазка.
Сградата е проектирана на 4 нива - партер и три жилищни етажа, с общо 13 броя нови жилища, едно търговско помещение и два гаража. Строи се с качествени материали по всички изисквания на енергиен клас А. Имотите за продажба са студиа, двустайни и тристайни апартаменти от 38 кв.м до 100 кв.м.
Има възможност за закупуване на паркомясто допълнително.
Предлагат се индивидуални схеми на плащане, съобразени с нуждите на клиента, както и три схеми от инвеститор.
План 1:
25% на Предварителен договор за покупко-продажба;
25% на етап груб строеж ;
25% на етап Акт 14;
15% на етап Акт 15;
10% на етап Акт 16.
План 2 - 5% отстъпка:
50% на Предварителен договор за покупко-продажба;
15% на етап груб строеж
15% на етап Акт 14;
15% на етап Акт 15.
План 3:
При плащането на 100% от сумата при подписване на Предварителен договор - с 10% отстъпка.
Оглед на имота
Можем да организираме оглед на имота в удобно за Вас време. За целта, свържете се с отговорния за офертата брокер и му кажете кога бихте искали да направите оглед.
Резервация на имота
Имотът може да бъде резервиран и свален от продажба със заплащане на депозит, след което се прекратява провеждането на огледи с други купувачи и започва подготовка на документите за сключване на предварителен и окончателен договор. Свържете се с отговорния брокер за този имот за подробна информация относно процедурата на покупка и начините за плащане.
Допълнителни услуги и следпродажбено обслужване
Ние сме уважавана компания и ще ...
За повече информация свържете се с нас и цитирайте референтния номер на имота. Моля, кажете, че сте видeли обявата в този сайт.
Референтен номер: LXH-124926
Тел: 0884 369 911, 0554 57 101
Отговорен брокер:Екатерина Георгиева
Виж всички обяви в superimotiburgas.bazar.bg или тук







