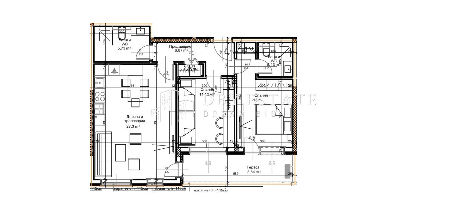
DBY estate недвижими имоти Ви предлага 3-стаен апартамент в луксозен затворен комплекс, намиращ се в район с ниско застрояване и нови модерни сгради близо до Родопите. Жилището е със изложение юг, като има следното разпределение: просторен хол с кухненски кът , две спални, две бани с тоалетни, склад, тераса. В района има детски градини, училища, спирки, аптеки, както малки и големи магазини.
За повече информация или оглед се обадете на посочения телефон и цитирайте Оферта 874
За още предложения посетете нашия сайт: https://dbyestate.bg/
Виж всички обяви в dbyestate.bazar.bg или тук
        
       
         
         
         
         
         
         
         
             
             
             
             
             
             
            






