Translations in other languages:
All real estate ads published on imot.bg have been translated into English and published on the partner site
Получихте нова обява по филтър





Промяна на цена на наблюдавана обява


стара цена
нова цена
imot.bg – обяви за продажби и наеми на имоти
Сайт за имоти №1
Translations in other languages:
All real estate ads published on imot.bg have been translated into English and published on the partner site
ДОБАВИ ОБЯВА Редакция на обява
Начало Публикуване Търсене Нови сгради Агенции Новини Кредити + Още... Моят имот
Продава 3-СТАЕН
град София, Лозенец
530 138 €
1 036 859.80 лв.

(3 442 €, 6 731.97 лв./m2)
Цената е с включено ДДС
История на цената
Коригирана в 10:03 на 27 май, 2025 год.
Обявата е посетена 2360 пъти.
Площ:
154 m2
Етаж:
4-ти от 6
Строителство:
Тухла, 2025 г.

Описание на имота:


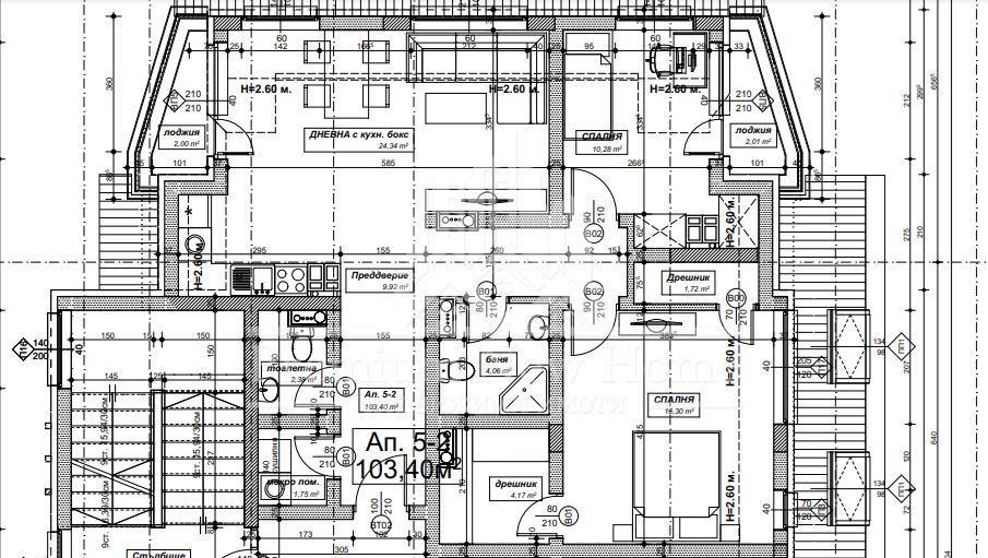
Представяме на Вашето внимание просторен и светъл тристаен апартамент в изключително модерна жилищна сграда. В нея има само тристайни и четиристайни апартаменти, което очертава една страхотна спокойна семейна среда! Имотът се намира в кв. Лозенец на страхотно място между Борисова градина и Южен парк. На минута пеша от спирка на трамвай 10, на 7-8 минути от метростанция Джеймс Баучер и в близост има магазини от големите вериги БИЛА, ДАР, МОЛ ПАРАДАЙС, банки и множество училища и детски градини. Гаражи и паркоместа на две нива с топла връзка. Асансьорът е до всички нива на сградата. Ограничен достъп само за собствениците! За ваше улеснение прилагаме схема на разпределение.
Сградата разполага с още подобни тристайни и четиристайни апартаменти - изборът Ви е голям!
Не се колебайте, обадете ни се и елате да видите сами!
Виж всички обяви в premiumnewhome.bazar.bg или тук
Особености
Тухла
В строеж
Асансьор
С гараж
С паркинг
За контакт:
0888 972 278
Брокер:
Мартин Михайлов
0888972278
Още оферти от брокера: Продава | Дава под наем | Купува | Наема
Агенция:
ПРЕМИУМ НЮ ХОУМ
0887 977 221
ПРЕМИУМ НЮ ХОУМ logo
Медал за прослужено време
В imot.bg от 2021 г.
premiumnewhome.imot.bg
Адрес:
област София, гр. София, бул. Панчо Владигеров 51, офис 1
ИЗПРАТИ ЗАПИТВАНЕ
ИЗПРАТИ ЗАПИТВАНЕТО

Продава 3-СТАЕН
град София, Лозенец
Обява: 1c171031841796520

530 138 €
1 036 859.80 лв.
История на цената
(3 442 €, 6 731.97 лв./m2)

Цената е с включено ДДС
ЗАПАЗИ ОБЯВАТА

Местоположение: град София, Лозенец

Виж още имоти от София или още Тристайни Апартаменти в София
Допълнителни данни за имотите в района и сравнение с други райони: Търсене в АРХИВ 2013 - 2025 г.











Добави/редактирай
вид имот и район
*Средните цени са определени чрез медиана стойност.
Още обяви в imot.bg
КОНТАКТИ | SMS КОДОВЕ | СТАТИСТИКА | ПОМОЩ | ОБЩИ УСЛОВИЯ | РЕКЛАМА | ТОП ОФЕРТА | Въпроси и предложения към imot.bg
Резон Медия | Имоти | Автомобили | Работа | Новини | Обяви | Преводи и легализация 2002-2025 ® Copyright imot.bg
© imot.bg ползва и препоръчва хостинг услугите на Bulinfo.net
Следвайте ни в: