МЕСТОПОЛОЖЕНИЕ:Квартал 'Тракия' е един от големите квартали в град Пловдив, който се намира в източната част на града.В квартала се намират различни училища, детски градини, магазини, заведения, паркове и други обществени места. Тракия е много обширен и разнообразен по отношение на обитателите си и предлага различни услуги и удобства.
СТРОИТЕЛСТВО: Апартаментът се намира на 9 етаж , тухла.
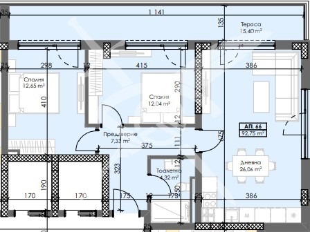
РАЗПРЕДЕЛЕНИЕ: Жилището разполага с площ от 109 кв.м. дневна,две спални, баня,тоалета,тераса.
СЪСТОЯНИЕ: В строеж.
Заповядайте да Ви го покажем. Използвайки нашите услуги Вие ще превърнете закупуването на новия си дом в едно приятно изживяване, ще получите персонален консултант, съдействие при кандидатстване за кредит от всички банки в България, интериорни дизайнери и екип, който да се погрижи за нужните документи по Вашата сделка. На Ваше разположение сме всеки ден, от понеделник до неделя от 09:00 до 20:00ч. Възползвайте се от безплатна консултация в наш офис, където ще ви спестим време и ще ви запознаем с всички актуални имоти в България, отговарящи на Вашето търсене. Свържете се с нас на 0887779990 /на цената на един градски разговор/ или на 0884060990 и цитирайте кода към имота:552-20769
Виж всички обяви в xnvd_plovdiv.bazar.bg или тук







