Ако търсите спокойствие и чист въздух, това е Вашият избор.
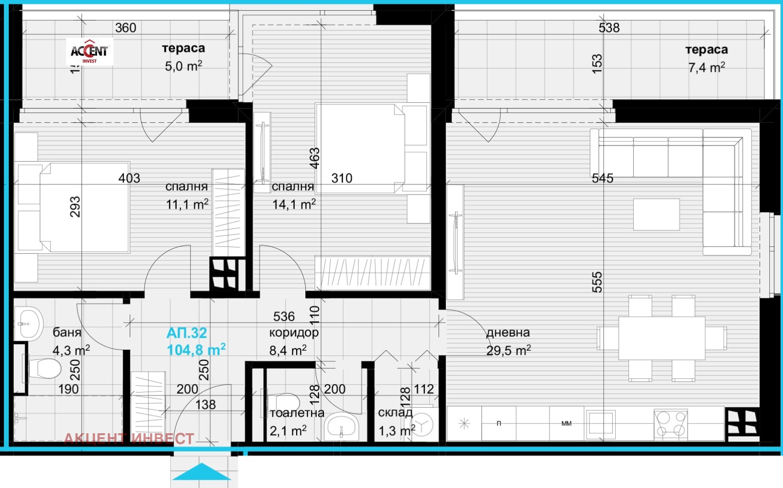
Представяме Ви тристаен апартаемнт с обща площ 121,05m2. Разположен на 6-ти етаж от десет в сграда 4. Състои се от: входно антре(коридор), просторен и слънчев дневен тракт с кухненска част и зона за релакс- 29,5кв.м. с изход към тераса тип 'Лоджия'- 7,4кв.м.; родителска спалня; детска спалня;от двете спални има излаз към втора тераса; баня и тоалет; самостоятелно WC и склад.
Изложение: североизток.
Възможност за закупуване на паркомясто в подземния паркинг на сградата на цена от 16 500Е.
Комплекс от затворен тип Елисия Грийн ще се реализира на терен с площ 9 000 кв.м. и ще се състои от 4 сгради, с по 10 жилищни етажа. Сградите са с изчистена, съвременна архитектура и са разположени сред просторна паркова среда, гарантираща комфортна среда на живот.
Апартаментите са удобни и просторни, с различно изложение и квадратура. Към всеки апартамент имате възможност да закупите открито или закрито паркомясто. Всички жилища ще бъдат завършени по БДС. Панорамна гледка към града и морето ще се открива от високите етажи на сградите.
Фасада:
Високоефективна топлоизолационна система. Висококачествена силиконова мазилка, устойчива на атмосферни влияния, водоотблъскваща, с висока паропропускливост. Дограма 7-камерна, троен стъклопакет с две специални стъкла (четири сезона + бяло + К стъкло) с газ аргон. Стъклени и метални парапети.
Локация и предимства:
Комплексът се намира в юго-източната част на варненския квартал Аспарухово, в пешеходно разстояние от Парка и морето. Районът е изключително зелен и много тих и спокоен. Отлична комбинация между градски и ваканционен имот. Качествено строителство. Сигурна инвестиция.
Разстояния:
450 м до LIDLи Парк Аспарухово
500 м Автобусна спирка
900 м Плаж Аспарухово
1,4 км Яхтено Пристанище
1,4 км Мол Сити център Аспарухово
Поддръжка на общи части:
Поддръжката на жилищния комплекс ще се осъществява от професионален домоуправител, избран от общото събрание на собствениците.
Стартиране на проекта: Януари 2024г.
Срок на изпълнение: 36 месеца.
Виж всички обяви в accentinvest.bazar.bg или тук







