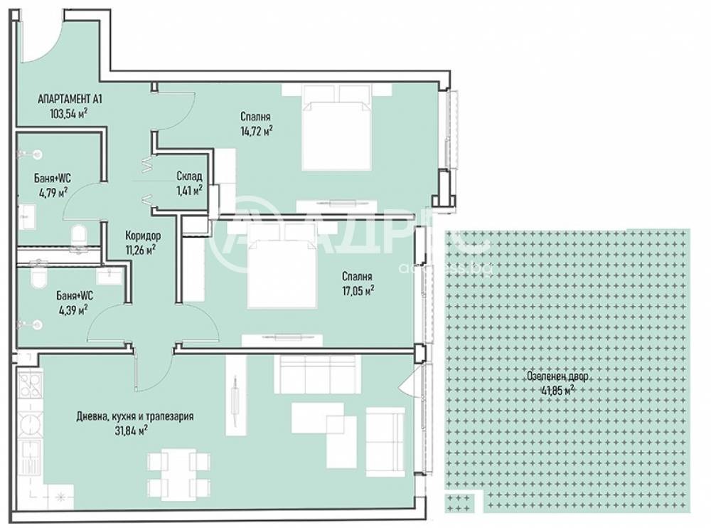
Тристаен апартамент със ЗП- 103.54 м2 кв.м. и разкошен собствен двор от 41.85 кв.м. Разположен е на партерен етаж. Състои се от: просторна дневна с кухненски бокс и трапезария, две спални, две бани и склад. Към жилището има и двор с площ 41,847м2. Изложението е източно. Отоплението е на ТЕЦ. Има възможност за покупка на паркомясто или гараж.
Намира се в кв. 'Младост 4', само на крачка от метростанция и магазини 'Кауфланд', 'Фантастико', 'Технополис', 'Sport Depot' и 'Комо'. В непосредствена близост до сградата е Бизнес Парк 'София'.
Съвременна жилищна сграда с изискана фасада и изпълнение на най-високо ниво. Жилищният комплекс има три входа със сто и четири апартаменти. Девет надземни и два подземни етажа, включително гаражи и паркоместа.
Отлична локация. Качество на строителството. Поддръжка.
Обади се сега и цитирай този код 595354
Виж всички обяви в address.bazar.bg или тук







