Предимства на имота:
- ЛОКАЦИЯ: Инфраструктурно най-развита локация в кв. 'Остромила'. Намира се на асфалтов път, в близост до нови ниски сгради и къщи.
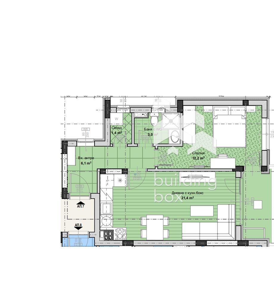
- РАЗПРЕДЕЛЕНИЕ: Просторна всекидневна с кухненски бокс с площ от 21,4 кв.м, спалня с площ от 12,2 кв.м, антре, склад, баня с тоалетна и тераса*.
- ЕТАЖНОСТ: 3-ти етаж от общо 3.
- ОТОПЛЕНИЕ: Електричество.
- ИЗЛОЖЕНИЕ: Югоизток.
- ПАРКИРАНЕ: Наличие на надземни паркоместа и гаражи.
- СГРАДА: Апартаментът се намира в първа сграда, част от комплекс от 3 малки бутикови сгради на 3 етажа, всяка с по 3 апартамента на етаж.
- СХЕМИ НА ПЛАЩАНЕ: 30% / 40% / 20% / 10% - стандартна схема на плащане.
- ЕТАП НА СТРОИТЕЛСТВО: Сградата е на Кота 0 . Въвеждане в експлоатация се очаква през 2027г.
* НИСЪК ПРОЦЕНТ ОБЩИ ЧАСТИ
БИЛДИНГ БОКС предоставя безплатна консултация и съдействие при финансиране на избрания от Вас имот.
Оферта 26911
Виж всички обяви в buildingbox.bazar.bg или тук



