Новата жилищна сграда в кв. Триъгълника е разположена само на 3 минути пеша от метростанция Хан Кубрат и 4 минути от парк Горска култура място, което съчетава спокойствието на квартала и удобството на отличната инфраструктура.
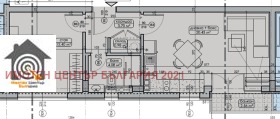
Проектът е в начален етап на строителство (пред Акт 14) и се изпълнява с висококачествени материали и внимание към детайла. В сградата се предлагат двустайни, тристайни и четиристайни апартаменти, както и външни и подземни паркоместа.
‼️ Промоционална схема за първите продадени апартаменти:
20% при подписване на договор
80% при Акт 16
Сградата е отличен избор за нов дом или инвестиционен имот в развиваща се градска зона с удобен транспорт, зелени площи и всички нужни услуги в непосредствена близост.
Отговорен брокер за имота:Преслава Дръндарова
Виж всички обяви в home_center.bazar.bg или тук







