Стартираме строителство!
Сградите Диагонали ще бъдат изградени в кв. Левски В. В резултат от задълбочени проучвания и анализи в областта на жилищното строителство, екипът на Конструктив е изградил цялостна система за проектиране и изграждане на жилищна среда, в която хората могат да имат пълноценен живот.
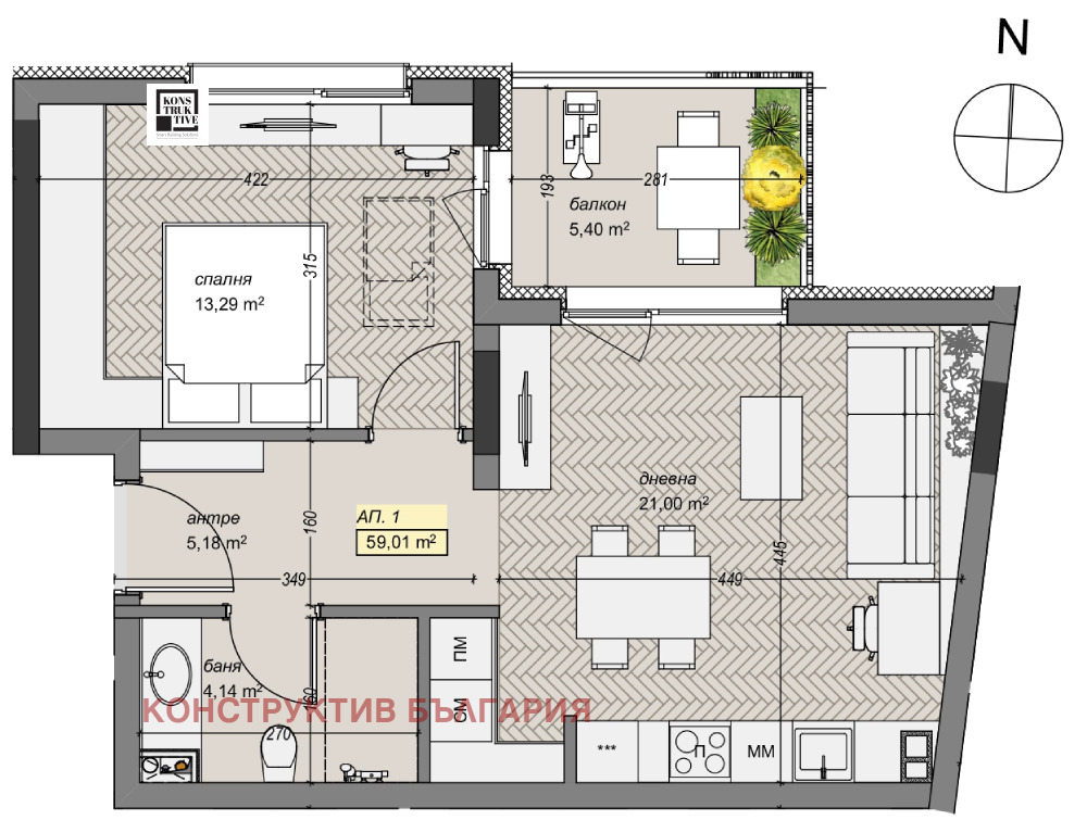
Най-важното, което трябва да знаете за Сградите Диагонали:
-На 5 минути пешеходно разстояние от метростанция;
-Озеленено дворно пространство с контрол на достъпа;
-Паркирането е решено изцяло в подземното ниво и в гаражи на партерно ниво с достъп откъм улицата, като по този начин дворното пространство е без достъп на автомобили;
-Изключително функционални жилища, които са в резултат от задълбочени анализи и проучвания от архитектите на Конструктив;
-Звукоизолационни системи срещу въздушен шум, ударен шум и шум от инсталации;
-Хидроизолационни системи с тройна защита за сутеренните нива;
-Изцяло нова външна инфраструктура път, комунална инфраструктура, улично осветление;
-Продават се и няколко търговски обекта;
Целта на екипа на Конструктив е да създаде среда, която осигурява необходимите условия за пълноценен живот. Екипът работи над двадесет години в областта на жилищното строителство, в резултат на което е установил неизменни принципи, които се залагат във всички сгради на компанията.
Повече за сградите Диагонали https://www.konstruktive.bg/projects-for-sale/%D0%94%D0%98%D0%90%D0%93%D0%9E%D0%9D%D0%90%D0%9B%D0%98-2
За клиенти, които искат да използват банково финансиране, компанията предлага съдействие при консултация с банка.
Консултант недвижими имоти арх. Мая Софрониева, тел. 0889 55 04 43; е-mail: [email protected]
Свържете се с нас, с радост ще отговорим на всички ваши въпроси.
Виж всички обяви в konstruktive.bazar.bg или тук



