*** Обява от частно лице ***
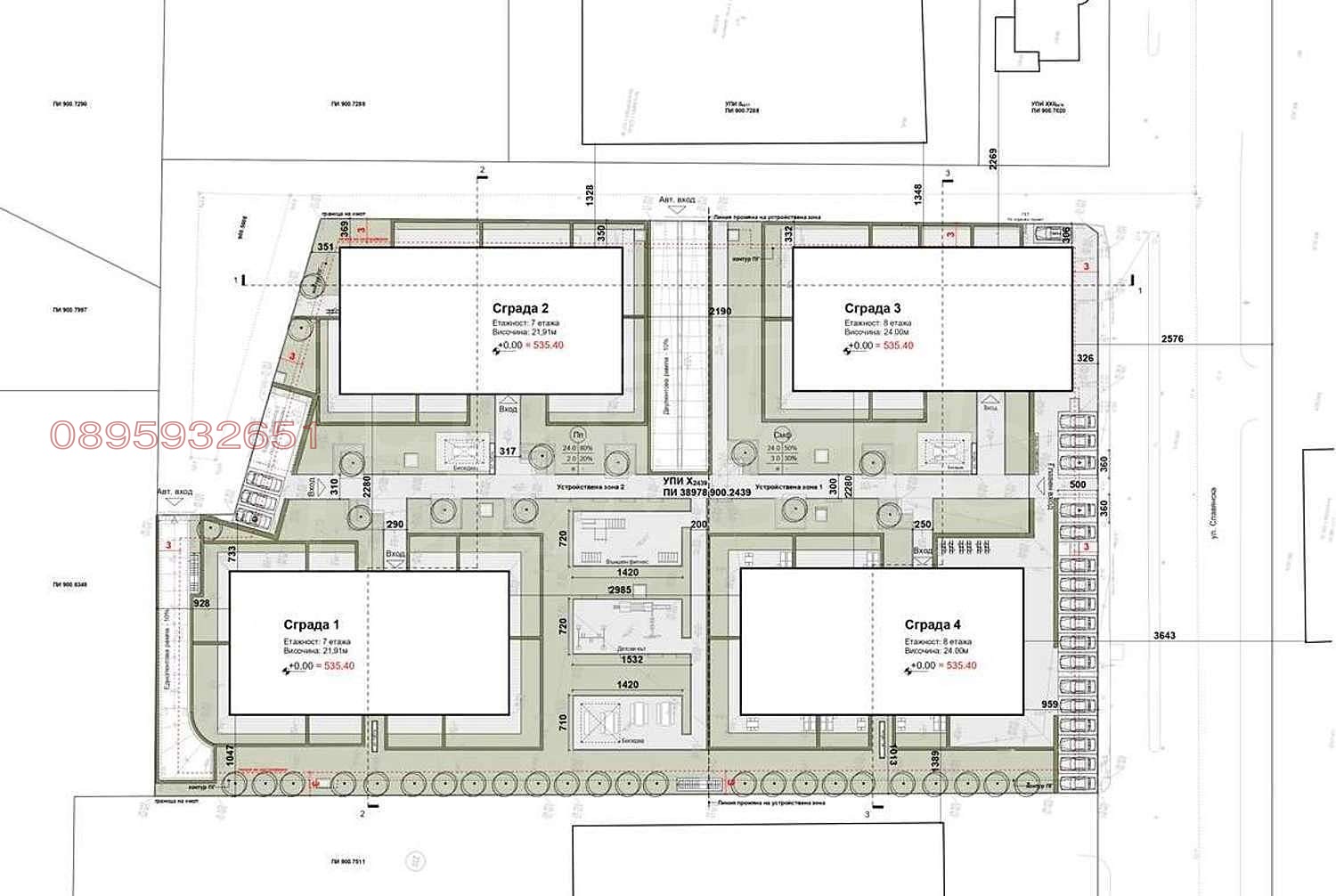
Сграда 2 завършено е изграждането на първите четири етажа. Излята е плочата на пети етаж и започва подготовка за изпълнението на вертикалите на четвъртия етаж.
етаж - 5 от 7
Изложение - ЮГ + Запад ( панорамна гледка , висок етаж , постоянно слънчев
Към имота има подсигурено подземно ПМ което се продава отделно .
Комплексът се отличава с просторен вътрешен двор, богато озеленяване, детски площадки и зони за отдих, които създават уютна и спокойна среда за живеене. Сигурността на жителите е гарантирана чрез контролиран достъп и видеонаблюдение. Отоплението е подсигурено на газ и с климатици.
Сградата впечатлява с съвременна фасада, луксозни общи части и асансьор, а строителството е изпълнено с материали от най-висок клас, осигуряващи комфорт и дълготрайност.
Апартаментът е функционално разпределен и включва:
светла дневна с кухня и трапезария,
една
баня с тоалетна,
складово помещение,
коридор и тераса.



