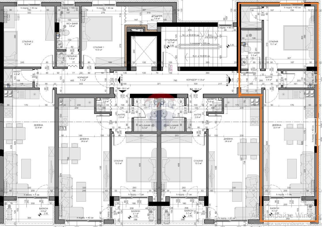
Жилището е със статут на апартамент, разположено на втори етаж, с чиста площ 64,2 кв.м., разпределени в:
* дневен тракт с кухненска част /22,40 кв.м./
* просторна спалня /13,10 кв.м./
* общ санитарен възел /3,30 кв.м./
* мокро помещение /2кв.м./
От дневния тракт има излаз на тераса. Към имота има 11 кв.м. идеални части от общите части на сградата и от правото на строеж, както и идеални части от дворното място.
Жилището ще бъде издадено по БДС.
Към имота има възможност за покупка на открито или закрито паркомясто.
Сградата е разположена в тих и зелен район, който е подходящ за целогодишно живеене, като предлага спокойствие и чист въздух. В същото време, тя е в близост до основни транспортни връзки, хранителни магазини, училища, детски градини и други удобства, които ще направят ежедневието ви удобно и лесно. Проектът ще бъде изграден с висококачествени материали, които гарантират дълготрайност и енергийна ефективност, осигурявайки комфорт през всички сезони.
Сградата разполага със свободни двустайни и тристайни апартаменти. Отличаващият се модерен архитектурен дизайн на сградата, ведно с комуникативната локация предлага удобството на града в съчетание с тишината на природата. Панорамни гледки, просторни стаи и помещения, лесен достъп, близост до основни пътни артерии и комуникации като хранителни магазини, училища, детски градини и автобусна спирка на метри от имота, правят сградата отличен избор за желаещите тишина и спокойствие на една ръка разстояние от удобствата на града.
Виж всички обяви в partners13.bazar.bg или тук







