Намира се на 100м от НСА, в близост до спирки на градски транспорт, здравни заведения, спортно игрище, хранителни магазини, заведения и детски площадки.
БИЛДИНГ БОКС предлага за продажба двустаен апартамент в ж.к. 'Малинова долина'.
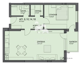
Апартаментът е със застроена площ 67.00 кв.м., с функционално разпределение, позициониран на 2-ти етаж oт общо 7.
Състои се от дневна с кухненски бокс, спалня, баня с тоалетна, склад и лоджия. Отоплението е на газ. Изложението е изток.
Апартаментът се продава на шпакловка и замазка!
С четири сгради зад гърба си и много доволни клиенти, инвеститорът предлага качество на строителството и точно спазване на сроковете за изпълнение!
Сградата е с АКТ 15.
Има възможност за покупка на подземни гаражи и паркоместа, както и на външни паркоместа.
БИЛДИНГ БОКС предоставя безплатна консултация и съдействие при финансиране на избрания от Вас имот.
Оферта 10726
Виж всички обяви в buildingbox.bazar.bg или тук



