🏡 Жилищна сграда Майски ден Люлин 10
🌳 Нов проект на ул. Майски ден , в близост до бул. Сливница и метростанция Западен парк .
🚇 Удобна локация:
Метро Западен парк директна връзка до центъра
Автобуси: 83, 108, 309, 310
Тролейбуси: 6, 7
🛍 Наоколо ще откриете:
Хипермаркет Билла , супермаркети КАМ и Т Маркет
Детски градини и училища всичко на пешеходно разстояние
Западен парк зеленина, спорт и отдих
✨ Предимства на сградата:
Съвременно строителство (2025 2027)
Енергоефективност и функционални разпределения
Озеленен двор и контролиран достъп
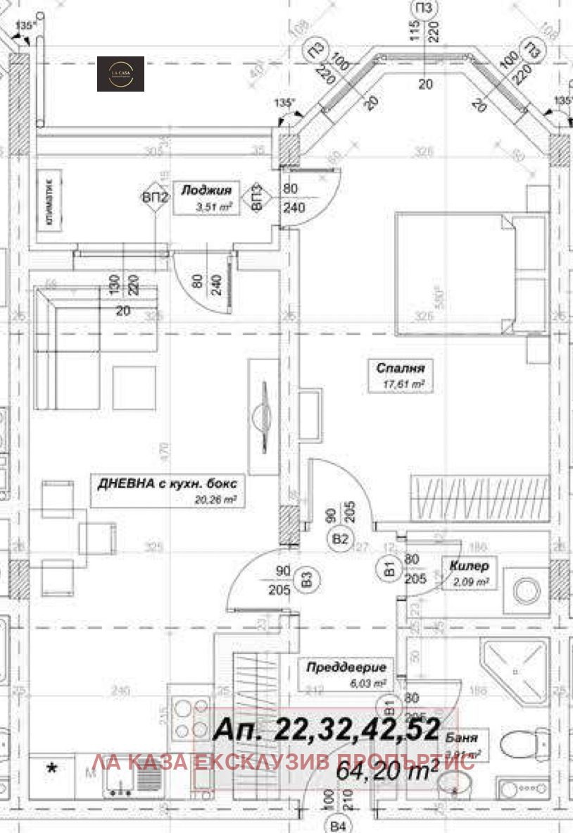
🏠 Специално представяме Апартамент 22:
Етаж 2
2-стаен, с площ 81 кв.м
Просторна дневна с кухня
Спалня с излаз към тераса
Баня + складово помещение
💰 Цена: 141 770 с ДДС
📌 Гъвкави схеми на плащане
📞 За контакти и огледи:
Самуил Симеонов La Casa Exclusive Properties
📲 0886 688 166
📧 [email protected]
Виж всички обяви в lacasaproperties.bazar.bg или тук







