-ГОТОВА СГРАДА!
-НА 50М. ОТ КАУФЛАНД!
-ОТЛИЧНА ИНВЕСТИЦИЯ!
-ПОДЗЕМНО ПАРКОМЯСТО!
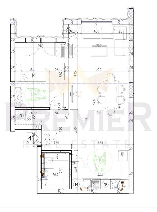
Имоти Премиер представя на вашето внимание просторен двустаен апартамент с площ от 75 кв.м, разположен на отлично място на метри от Кауфланд.
Жилището има следното функционално разпределение: входно антре, просторна дневна с кухненски бокс ( 30 кв.м ), уютна спалня, баня с тоалет и дрешник.
Апартаментът се намира в нова тухлена сграда с модерна визия и отлично поддържани общи части.
-Има възможност за подземно паркомясто.
Отлична локация в близост до магазини, училища, детски градини и спирки;
Просторно и светло жилище, подходящо за семейно обитаване или инвестиция;
Комуникативен район с лесен достъп до центъра на града.
КОД НА ОБЯВАТА: 375729
Виж всички обяви в imotipremier.bazar.bg или тук



