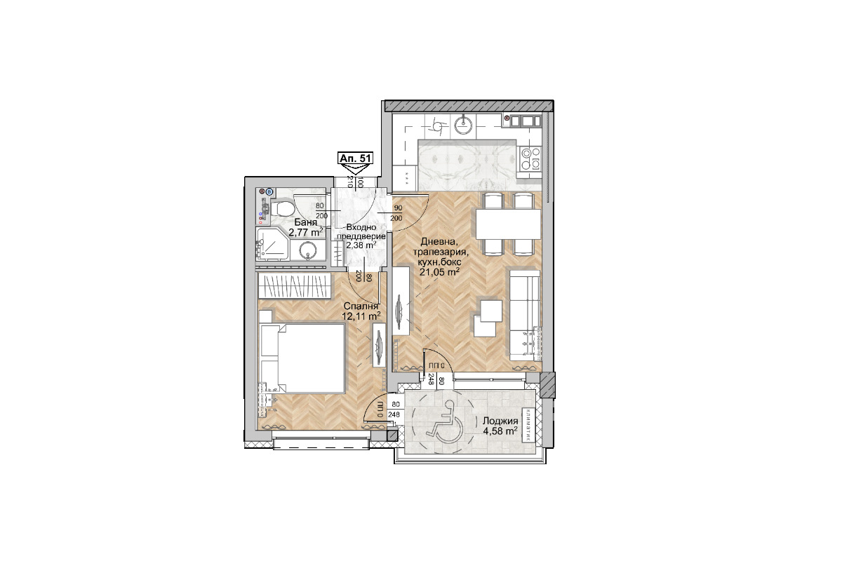
Сградата е разположена в утвърден и предпочитан район с отлична инфраструктура. В близост се намират спирки на градски транспорт, детски градини, училища и търговски обекти, а основните пътни връзки осигуряват бърз достъп до всички ключови точки на града. Проектът включва 59 апартамента, подземни паркоместа, гаражи и допълнителни помещения, разпределени в девет жилищни етажа. Всеки детайл е внимателно обмислен, за да предложи комфорт, сигурност и съвременна естетика в една завършена градска среда. . За да научите повече за проекта, наличните апартаменти, паркоместа и гаражи, схемите на плащане и др. както и за да резервирате своето ново жилище ни се обадете на посочения по-долу телефон за връзка. Код на имота: 735 - 51
Виж всички обяви в premiumhomes.bazar.bg или тук



