✨ Основни предимства:
📍 ТОП локация тих и зелен район, с бърз достъп до центъра и паркови зони.
🏢 Модерен комплекс с акт 14, очакван акт 16 до средата на 2026 г.
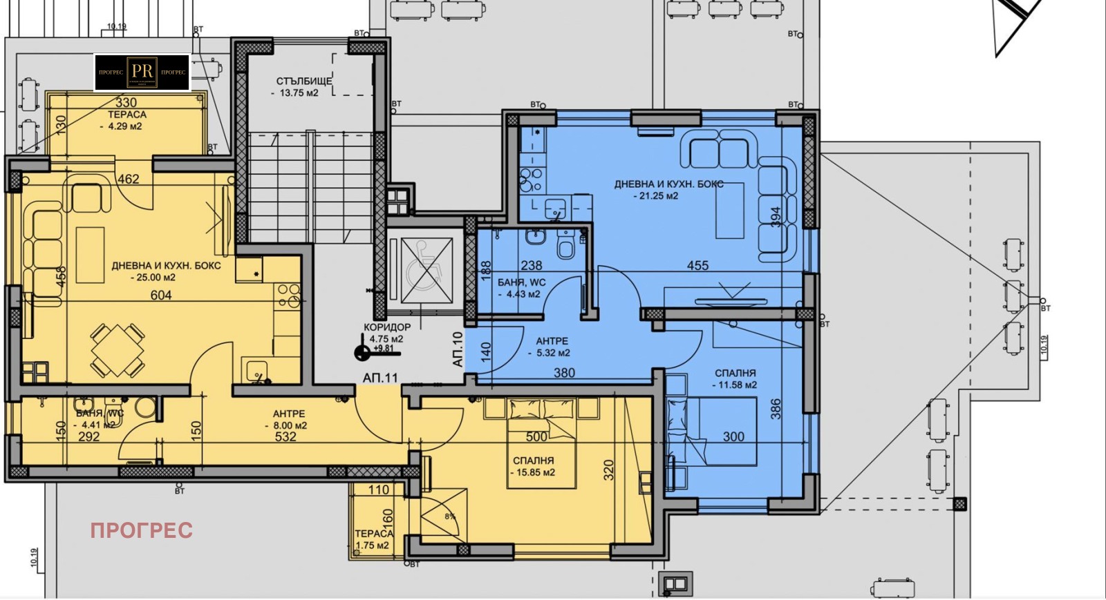
🛋️ Разпределение: дневна с кухненски бокс, спалня, баня с тоалетна, антре и впечатляваща покривна тераса.
📐 Обща площ: 93,55 м²
Площ на апартамента с общи части : 66,55 м²
Тераса: 27 м²
Изложение - Юг/изток/Запад
🏗️ Сградата се издава на шпакловка и замазка с блиндирана входна врата, луксозни общи части и хидравличен асансьор.
🌆 Архитектура и дизайн:
Комплексът е безпорно най-впечатляващия в града под Тепетата - вдъхновен от класическите сгради в Манхатън елегантна фасада с арки, тухлени облицовки,рамкирани френски прозорци и скрити климатични системи.
🏗️ Качество на строителството:
Фасада: немски клинкерни тухли (Winnenberger Porotherm Termo) енергийна ефективност и дълготрайност
Двойни зидове с каменна вата за висока шумо- и топлоизолация,фибран на тавана
5-камерна дограма KÖMMERLING с четирисезонно K-стъкло
Парапети и цветарници от ковано желязо
ВНИМАНИЕ - ИМОТИ ОТ ТАКОВА КАЧЕСТВО СА МНОГО РЯДКО СРЕЩАНИ В МАСОВОТО СТРОИТЕЛСТВО !
📞 Свържете се с нас, за да разгледате този забележителен имот отблизо и да го направите свой дом или инвестиция.
Виж всички обяви в progressplovdiv.bazar.bg или тук
        
       
         
         
         
         
         
         
         
         
         
         
         
         
         
         
         
         
         
             
             
             
             
             
             
             
             
             
             
             
             
             
             
             
             
            






