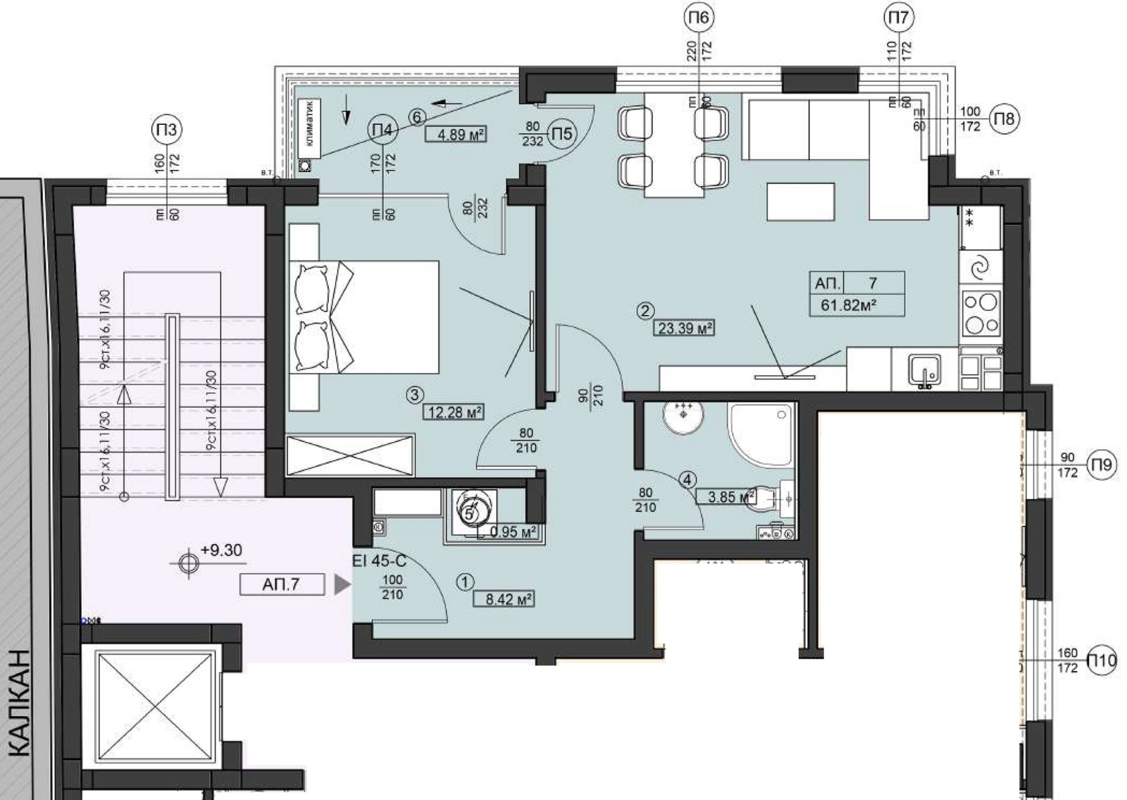
- Разположен на четвърти жилищен от шест етажа , АП. 7 е изложен на северозапад. Състои се от / 61,82 кв.м. / жилищна площ , разпределени във : входно антре с мокро помещение , голям и светъл хол с трапезария и кухненски бокс / 23,39 кв.м. / , баня с тоалетна , самостоятелна спалня , както голяма тераса с чудесен изглед.
- Жилището се предава с най-висок клас шест камерна PVC дограма / KÖMMERLING / с троен стъклопакет , външна блиндирана врата , поставени алуминиеви радиатори и поставени изводи за климатици , изградени ВиК , ел. инсталации и звънчеви системи. Отопление на ТЕЦ. Луксозни общи части с контрол на достъпа и видео наблюдение.
- Повече информация , уговорки относно огледи , както професионално съдействие за кредитиране от лицензирания ни финансов консултант , на тел . : 0887 776 190
Виж всички обяви в expertbrokers.bazar.bg или тук







