Предимства на имота:
- ЛОКАЦИЯ: В самото начало на кв. 'Остромила', в близост до VIA Парк Юг.
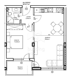
- РАЗПРЕДЕЛЕНИЕ: Просторна всекидневна с кухненски бокс с площ от 26 кв.м, спалня с площ от 13,2 кв.м, антре, баня с тоалетна и тераса.
- ЕТАЖНОСТ: 4-ти етаж от общо 5.
- ОТОПЛЕНИЕ: Електричество.
- ИЗЛОЖЕНИЕ: ИЗТОК.
- ПАРКИРАНЕ: Възможност за закупуване на паркомясто от инвеститора.
- СГРАДА: Апартаментът се намира в нова сграда от инвеститор с дългогодишна история и опит.
- ЕТАП НА СТРОИТЕЛСТВО: Пред АКТ 14. Въвеждане в експлоатация (АКТ 16) се очаква през 2027г.
- СХЕМА НА ПЛАЩАНЕ: 25% сега останалата част от сумата при АКТ 16.
БИЛДИНГ БОКС предоставя безплатна консултация и съдействие при финансиране на избрания от Вас имот.
Оферта 25277
Виж всички обяви в buildingbox.bazar.bg или тук







