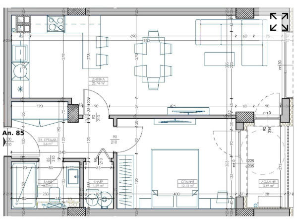
Апартаментът е ситуиран на 11-ти етаж от общо 11, с обща площ от 76.1 м² и източно изложение, осигуряващо светлина и комфорт през целия ден. Сградата е в процес на строителство, със срок на завършване до 2 години.
Разпределение:
✔️ Входно преддверие 5,6 м²
✔️ Просторна дневна с кухненски бокс 28,74 м²
✔️ Спалня 12,12 м²
✔️ Баня с тоалетна 3,3 м²
✔️ Килер 1,6 м²
✔️ Лоджия 3,49 м²
Допълнителна информация:
✅ Възможност за гъвкави схеми на плащане
✅ Опция за закупуване на паркомясто
Ние от Имоти Премиер ще Ви съдействаме през целия процес от избора на имота до финализиране на сделката! При желание съдействаме и за банково кредитиране при най-добри условия.
📞 За повече информация и огледи: Код на имот 375372
Виж всички обяви в imotipremier.bazar.bg или тук
        
       
         
         
         
             
             
            






