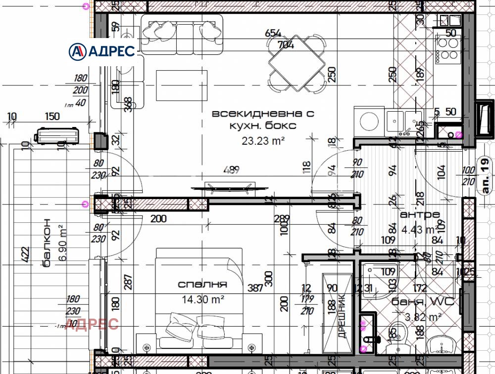
Сградата предлага двустайни и тристайни апартаменти, които са подходящи както за лично ползване, така и за инвестиция.
Отлично местоположение с уредена среда и градски транспорт. Квартал Младост е динамично развиващ се квартал, предпочитан, както за живеене, така и за инвестиция. В близост до парк , хипермаркети и супермаркети, детски училища, детски градини, медицински центрове, аптеки и др., са само една малка част от добре развитата инфраструктура и изградена комуникация.
Сградата ще се състои от два входа с модерна архитектурна визия и безкомпромисно качество на строителство.
Апартаментите са с разнообразно изложение и функционално разпределение. Стаите са с правилни форми, лесни за обзавеждане. Сградата е обезпечена с достатъчно паркоместа и гаражи, които създават максимален конфорт на живущите. Много зеленина и околоблоково пространство.
Обади се сега и цитирай този код 613743
Виж всички обяви в adress.bazar.bg или тук
        
       
         
         
         
         
         
         
             
             
             
             
             
            






