💎 20% при предварителен договор и 80% на АКТ 16!
● 'ГОЛД ИМОТИ' с удоволствие Ви представя новостроящ се комплекс с АКТ 14 в близост до парк 'Лаута'.
● Състои се от шест секции, всяка на девет етажа като можем да Ви предложим разнообразие от просторни двустайни и тристайни жилища.
● Комплексът залага на два основни елемента - гората и градът, които определят цялостната концепция.
🏘️ Разпределения:
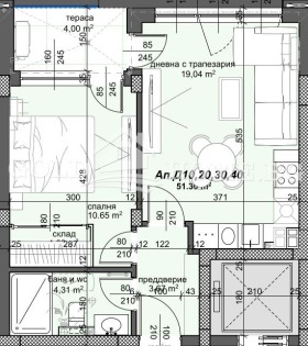
Двустайните апартаменти се състоят от: предверие, дневна с кухненски бокс, спалня, баня с тоалетна и тераса.
⮚Налични модули:
-63,04кв.м - 93 930 евро;
-74,25кв.м - 113 600 евро;
-80,14кв.м - 119 410 евро;
-80,16кв.м - 119 440 евро;
-81,74кв.м - 121 790 евро;
✔️ Състояние:
Жилищата се издават на шпакловка и замазка, ел.инсталация до ключ и контакт, ВиК до тапа , ПВЦ дограма и външна блиндирана врата.
🌟 Характеристики и предимства на комплекса :
- Общите части ще бъдат луксозно завършени.
- Ще има по два високоскоростни, електрически асансьора във всеки вход.
- Ще бъдат проектирани детски площадки за най-малките обитатели.
- На крачка от Вас ще се намира плувен басейн, в който ще можете да отдъхнете след тежък работен ден.
- На територията на комплекса ще бъдат разположени хранителни магазини, ресторант, кафе, сладкарница и разнообразие от офиси.
🅿️Паркиране :
Паркирането е обезпечено на 100%. Възможност за закупуване на подземни и надземни паркоместа.
📄 Степен на завършеност :
Към момента сградата е с АКТ 14. Пусков срок: средата на 2026г.
🎯 Локация:
В близост до Plovdiv Plaza Mall, парк 'Лаута', бирария 'Йегерхоф', пицария 'Dominos', спирки на градски транспорт и други удобни за Вас локации!
➡️'ГОЛД ИМОТИ' Ви предлага, да се възползвате от професионално кредитно посредничество чрез Credit Center при ипотека, потребителски кредит и рефинансиране!
-УСЛУГАТА Е ИЗЦЯЛО БЕЗПЛАТНА!
-ИЗГОТВЯНЕ НА НЯКОЛКО ОФЕРТИ ОТ ВОДЕЩИ БАНКИ!
-НАЙ-ИЗГОДНИ УСЛОВИЯ СПРЯМО ВАШИЯТ ПРОФИЛ!
-НЕ Е НЕОБХОДИМО ДА СЕ РАЗКАРВАТЕ ВЪВ ВСЕКИ КЛОН НА РАЗЛИЧНИ БАНКИ!
➡️ Още атрактивни и актуални оферти може да разгледате на нашият сайт : goldhome.bg
📲 За повече информация и при интерес за оглед, моля свържете се с нас!
Виж всички обяви в gold_imoti.bazar.bg или тук
        
       
         
         
         
         
         
         
             
             
             
             
             
            






