Translations in other languages:
All real estate ads published on
imot.bg
have been translated into English and published on the partner site
Continue
Получихте нова обява по филтър
Промяна на цена на наблюдавана обява
стара цена
нова цена
Сайт за имоти
№1
ДОБАВИ ОБЯВА
Редакция на обява
Вход
|
Нова Регистрация
Начало
Публикуване
Търсене
Нови сгради
Агенции
Новини
Кредити
+ Още...
Моят имот
Избор на рубрика
|
Продава
|
Дава под наем
|
Купува
|
Търси да наеме
|
Заменя
|
Съквартиранти
Колко струва моят имот?
НОВО ТЪРСЕНЕ
|
КОРЕКЦИЯ НА ТЪРСЕНЕТО
|
РЕЗУЛТАТИ ОТ ТЪРСЕНЕТО
Увеличи
1
/
1
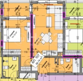
154 999 €/303 151.69 лв., Продава 2-СТАЕН, град София, Младост 4
Площ: 66 кв.м, Агенция, Етаж: 4-ти от 12, ТEЦ: ДА, Тухла, Ще бъде въведен в експлоатация 2027 г.,
Продава 2-СТАЕН
град София, Младост 4
Виж карта
154 999 €
303 151.69 лв.
(2 348 €, 4 592.29 лв./m
2
)
Не се начислява ДДС
Публикувана в 11:08 на 14 октомври, 2025 год.
Обявата е посетена
48
пъти.
Площ:
66 m
2
Етаж:
4-ти от 12
ТEЦ:
ДА
Строителство:
Тухла,
Ще бъде въведен в експлоатация
2027 г.
Напиши Бележка
Дай оценка
Съобщи за нередност
14:18 ч., 14.10.2025
Изтрий
Редактирай
Отказ
Запиши
Оценка: от 10
14:18 ч., 14.10.2025
(Ще получите SMS с ключ за верификация)
Съгласявам се с
общите условия
и
политики за защита на личните данни
Изпрати
Описание на имота:
ОЛИЧНА ЛОКАЦИЯ!! СРЕДЕН ЕТАЖ!! ПРАВИЛНИ ФОРМИ!! Представяме Ви двустаен апартамент разположен на среден 4ти етаж с източно изложение. Предимството е, че сградата се намира на удобна локация точно до хранителен магазин Кауфланд, Технополис, Спорт депо, Лидл, Билла, аптеки, ветеринарна клиника, нон стоп и много други. Само на 2 мин от Околовръстен път- бърз и лесен достъп до множество точки на града и в непосредствена близост до Бизнес Парк, както и метростанция 'Бизнес парк'. Разпределението е както следва: всекидневна с кухненски бокс, спалня, балкон, баня с тоалетна. Сградата е на етап пред Акт 14, като се очаква да бъде завършена в средата на 2027 година. Сградата ще бъде присъединена към ТЕЦ, както и ще има и опция да се отоплява на ток. Имотът се продава с подземно паркомясто на цена от 30 000 . За да видите и закупите имота, се обадете и цитирайте следния код: 136180
Виж всички обяви на агенцията в
home2um.bazar.bg
или
тук
.
Особености:
• Тухла
• Асансьор
• С гараж
• С паркинг
• Интернет връзка
• Видео наблюдение
• Контрол на достъпа
• Саниран
За контакти:
0875363330
Агенция: ХОУМ ТУ Ю БЪЛГАРИЯ
http://home2um.imot.bg
Още оферти:
продава
|
дава под наем
|
купува
|
наема
Адрес: област София, гр. София, бул. 'Андрей Сахаров' 16 ет. 1
Тел.: 0875363330
http://www.home2u.bg
Изпрати запитване:
Вашето съобщение (до 1000 символа
):
Вашето име:
Вашия мобилен телефон:
Вашия E-mail:
Изпрати Е-mail
Съгласявам се с
общите условия
и
политики за защита на личните данни
Продава 2-СТАЕН
град София, Младост 4
Обява: 1b176042929961984
154 999 €
303 151.69 лв.
(2 348 €, 4 592.29 лв./m
2
)
Не се начислява ДДС
0875363330
Изпрати E-mail на продавача
ЗАПАЗИ ОБЯВАТА
Сподели:
ХОУМ ТУ Ю БЪЛГАРИЯ
област София, гр. София, бул. 'Андрей Сахаров' 16 ет. 1
В imot.bg
от 2014 г.
Виж всички имоти на агенцията
Местоположение:
град София, Младост 4
Допълнителни данни за имотите в района и сравнение с други райони:
Търсене в АРХИВ 2013 - 2025 г.
Изберете вида на имота и района
Вид на имота:
Област / Град:
Район:
1
1-СТАЕН
2-СТАЕН
3-СТАЕН
4-СТАЕН
МНОГОСТАЕН
МЕЗОНЕТ
ОФИС
АТЕЛИЕ, ТАВАН
ЕТАЖ ОТ КЪЩА
КЪЩА
ВИЛА
МАГАЗИН
ЗАВЕДЕНИЕ
СКЛАД
ГАРАЖ, ПАРКОМЯСТО
ПРОМ. ПОМЕЩЕНИЕ
ХОТЕЛ
ПАРЦЕЛ
ЗЕМЕДЕЛСКА ЗЕМЯ
БИЗНЕС ИМОТ
град Благоевград
град Бургас
град Варна
град Велико Търново
град Видин
град Враца
град Габрово
град Добрич
град Кърджали
град Кюстендил
град Ловеч
град Монтана
град Пазарджик
град Перник
град Плевен
град Пловдив
град Разград
град Русе
град Силистра
град Сливен
град Смолян
град София
град Стара Загора
град Търговище
град Хасково
град Шумен
град Ямбол
7-ми 11-ти километър
Абдовица
Банишора
Белите брези
Бенковски
Борово
Ботунец
Ботунец 2
Бояна
Бъкстон
Витоша
Военна рампа
Враждебна
Връбница 1
Връбница 2
Гевгелийски
Гео Милев
Горна баня
Горубляне
Гоце Делчев
Градина
Дианабад
Димитър Миленков
Докторски паметник
Драгалевци
Дружба 1
Дружба 2
Дървеница
Експериментален
Западен парк
Захарна фабрика
Зона Б-18
Зона Б-19
Зона Б-5
Зона Б-5-3
Иван Вазов
Изгрев
Изток
Илинден
Илиянци
Карпузица
Княжево
Красна поляна 1
Красна поляна 2
Красна поляна 3
Красно село
Кремиковци
Кръстова вада
Лагера
Левски
Левски В
Левски Г
Летище София
Лозенец
Люлин - център
Люлин 1
Люлин 10
Люлин 2
Люлин 3
Люлин 4
Люлин 5
Люлин 6
Люлин 7
Люлин 8
Люлин 9
Малашевци
Малинова долина
Манастирски ливади
Медицинска академия
Младост 1
Младост 1А
Младост 2
Младост 3
Младост 4
Модерно предградие
Мусагеница
Надежда 1
Надежда 2
Надежда 3
Надежда 4
НПЗ Изток
НПЗ Искър
НПЗ Средец
НПЗ Хаджи Димитър
Обеля
Обеля 1
Обеля 2
Оборище
Овча купел
Овча купел 1
Овча купел 2
Орландовци
Павлово
ПЗ Илиянци
ПЗ Хладилника
Подуяне
Полигона
Разсадника
Редута
Република
Република 2
Света Троица
Свобода
Сердика
Сеславци
Симеоново
Славия
Слатина
СПЗ Модерно предградие
СПЗ Слатина
Стрелбище
Студентски град
Сухата река
Суходол
Толстой
Требич
Триъгълника
Факултета
Филиповци
Фондови жилища
Хаджи Димитър
Хиподрума
Хладилника
Христо Ботев
Център
Челопечене
Яворов
в.з.Американски колеж
в.з.Беловодски път
в.з.Бояна
в.з.Бункера
в.з.Врана - Герман
в.з.Врана - Лозен
в.з.Горна баня
в.з.Килиите
в.з.Киноцентъра
в.з.Киноцентъра 3 част
в.з.Люлин
в.з.Малинова долина
в.з.Малинова долина - Герена
в.з.Симеоново - Драгалевци
в.з.Черния кос
гр. Банкя
гр. Бухово
гр. Нови Искър
ж.гр.Зоопарк
ж.гр.Южен парк
м-т Барите
м-т Батареята
м-т Гърдова глава
м-т Детски град
м-т Камбаните
м-т Киноцентъра
м-т Мала кория
м-т Подлозище
м-т Щъркелово гнездо
м-т Юбилейна гора
м-т яз. Искър
м-т Яладжа
с. Балша
с. Бистрица
с. Бусманци
с. Владая
с. Войнеговци
с. Волуяк
с. Герман
с. Горни Богров
с. Доброславци
с. Долни Богров
с. Долни Пасарел
с. Железница
с. Желява
с. Житен
с. Иваняне
с. Казичене
с. Клисура
с. Кокаляне
с. Кривина
с. Кубратово
с. Кътина
с. Лозен
с. Локорско
с. Мало Бучино
с. Мировяне
с. Мрамор
с. Мърчаево
с. Негован
с. Панчарево
с. Плана
с. Подгумер
с. Световрачене
с. Чепинци
с. Яна
2
1-СТАЕН
2-СТАЕН
3-СТАЕН
4-СТАЕН
МНОГОСТАЕН
МЕЗОНЕТ
ОФИС
АТЕЛИЕ, ТАВАН
ЕТАЖ ОТ КЪЩА
КЪЩА
ВИЛА
МАГАЗИН
ЗАВЕДЕНИЕ
СКЛАД
ГАРАЖ, ПАРКОМЯСТО
ПРОМ. ПОМЕЩЕНИЕ
ХОТЕЛ
ПАРЦЕЛ
ЗЕМЕДЕЛСКА ЗЕМЯ
БИЗНЕС ИМОТ
град Благоевград
град Бургас
град Варна
град Велико Търново
град Видин
град Враца
град Габрово
град Добрич
град Кърджали
град Кюстендил
град Ловеч
град Монтана
град Пазарджик
град Перник
град Плевен
град Пловдив
град Разград
град Русе
град Силистра
град Сливен
град Смолян
град София
град Стара Загора
град Търговище
град Хасково
град Шумен
град Ямбол
7-ми 11-ти километър
Абдовица
Банишора
Белите брези
Бенковски
Борово
Ботунец
Ботунец 2
Бояна
Бъкстон
Витоша
Военна рампа
Враждебна
Връбница 1
Връбница 2
Гевгелийски
Гео Милев
Горна баня
Горубляне
Гоце Делчев
Градина
Дианабад
Димитър Миленков
Докторски паметник
Драгалевци
Дружба 1
Дружба 2
Дървеница
Експериментален
Западен парк
Захарна фабрика
Зона Б-18
Зона Б-19
Зона Б-5
Зона Б-5-3
Иван Вазов
Изгрев
Изток
Илинден
Илиянци
Карпузица
Княжево
Красна поляна 1
Красна поляна 2
Красна поляна 3
Красно село
Кремиковци
Кръстова вада
Лагера
Левски
Левски В
Левски Г
Летище София
Лозенец
Люлин - център
Люлин 1
Люлин 10
Люлин 2
Люлин 3
Люлин 4
Люлин 5
Люлин 6
Люлин 7
Люлин 8
Люлин 9
Малашевци
Малинова долина
Манастирски ливади
Медицинска академия
Младост 1
Младост 1А
Младост 2
Младост 3
Младост 4
Модерно предградие
Мусагеница
Надежда 1
Надежда 2
Надежда 3
Надежда 4
НПЗ Изток
НПЗ Искър
НПЗ Средец
НПЗ Хаджи Димитър
Обеля
Обеля 1
Обеля 2
Оборище
Овча купел
Овча купел 1
Овча купел 2
Орландовци
Павлово
ПЗ Илиянци
ПЗ Хладилника
Подуяне
Полигона
Разсадника
Редута
Република
Република 2
Света Троица
Свобода
Сердика
Сеславци
Симеоново
Славия
Слатина
СПЗ Модерно предградие
СПЗ Слатина
Стрелбище
Студентски град
Сухата река
Суходол
Толстой
Требич
Триъгълника
Факултета
Филиповци
Фондови жилища
Хаджи Димитър
Хиподрума
Хладилника
Христо Ботев
Център
Челопечене
Яворов
в.з.Американски колеж
в.з.Беловодски път
в.з.Бояна
в.з.Бункера
в.з.Врана - Герман
в.з.Врана - Лозен
в.з.Горна баня
в.з.Килиите
в.з.Киноцентъра
в.з.Киноцентъра 3 част
в.з.Люлин
в.з.Малинова долина
в.з.Малинова долина - Герена
в.з.Симеоново - Драгалевци
в.з.Черния кос
гр. Банкя
гр. Бухово
гр. Нови Искър
ж.гр.Зоопарк
ж.гр.Южен парк
м-т Барите
м-т Батареята
м-т Гърдова глава
м-т Детски град
м-т Камбаните
м-т Киноцентъра
м-т Мала кория
м-т Подлозище
м-т Щъркелово гнездо
м-т Юбилейна гора
м-т яз. Искър
м-т Яладжа
с. Балша
с. Бистрица
с. Бусманци
с. Владая
с. Войнеговци
с. Волуяк
с. Герман
с. Горни Богров
с. Доброславци
с. Долни Богров
с. Долни Пасарел
с. Железница
с. Желява
с. Житен
с. Иваняне
с. Казичене
с. Клисура
с. Кокаляне
с. Кривина
с. Кубратово
с. Кътина
с. Лозен
с. Локорско
с. Мало Бучино
с. Мировяне
с. Мрамор
с. Мърчаево
с. Негован
с. Панчарево
с. Плана
с. Подгумер
с. Световрачене
с. Чепинци
с. Яна
3
1-СТАЕН
2-СТАЕН
3-СТАЕН
4-СТАЕН
МНОГОСТАЕН
МЕЗОНЕТ
ОФИС
АТЕЛИЕ, ТАВАН
ЕТАЖ ОТ КЪЩА
КЪЩА
ВИЛА
МАГАЗИН
ЗАВЕДЕНИЕ
СКЛАД
ГАРАЖ, ПАРКОМЯСТО
ПРОМ. ПОМЕЩЕНИЕ
ХОТЕЛ
ПАРЦЕЛ
ЗЕМЕДЕЛСКА ЗЕМЯ
БИЗНЕС ИМОТ
град Благоевград
град Бургас
град Варна
град Велико Търново
град Видин
град Враца
град Габрово
град Добрич
град Кърджали
град Кюстендил
град Ловеч
град Монтана
град Пазарджик
град Перник
град Плевен
град Пловдив
град Разград
град Русе
град Силистра
град Сливен
град Смолян
град София
град Стара Загора
град Търговище
град Хасково
град Шумен
град Ямбол
7-ми 11-ти километър
Абдовица
Банишора
Белите брези
Бенковски
Борово
Ботунец
Ботунец 2
Бояна
Бъкстон
Витоша
Военна рампа
Враждебна
Връбница 1
Връбница 2
Гевгелийски
Гео Милев
Горна баня
Горубляне
Гоце Делчев
Градина
Дианабад
Димитър Миленков
Докторски паметник
Драгалевци
Дружба 1
Дружба 2
Дървеница
Експериментален
Западен парк
Захарна фабрика
Зона Б-18
Зона Б-19
Зона Б-5
Зона Б-5-3
Иван Вазов
Изгрев
Изток
Илинден
Илиянци
Карпузица
Княжево
Красна поляна 1
Красна поляна 2
Красна поляна 3
Красно село
Кремиковци
Кръстова вада
Лагера
Левски
Левски В
Левски Г
Летище София
Лозенец
Люлин - център
Люлин 1
Люлин 10
Люлин 2
Люлин 3
Люлин 4
Люлин 5
Люлин 6
Люлин 7
Люлин 8
Люлин 9
Малашевци
Малинова долина
Манастирски ливади
Медицинска академия
Младост 1
Младост 1А
Младост 2
Младост 3
Младост 4
Модерно предградие
Мусагеница
Надежда 1
Надежда 2
Надежда 3
Надежда 4
НПЗ Изток
НПЗ Искър
НПЗ Средец
НПЗ Хаджи Димитър
Обеля
Обеля 1
Обеля 2
Оборище
Овча купел
Овча купел 1
Овча купел 2
Орландовци
Павлово
ПЗ Илиянци
ПЗ Хладилника
Подуяне
Полигона
Разсадника
Редута
Република
Република 2
Света Троица
Свобода
Сердика
Сеславци
Симеоново
Славия
Слатина
СПЗ Модерно предградие
СПЗ Слатина
Стрелбище
Студентски град
Сухата река
Суходол
Толстой
Требич
Триъгълника
Факултета
Филиповци
Фондови жилища
Хаджи Димитър
Хиподрума
Хладилника
Христо Ботев
Център
Челопечене
Яворов
в.з.Американски колеж
в.з.Беловодски път
в.з.Бояна
в.з.Бункера
в.з.Врана - Герман
в.з.Врана - Лозен
в.з.Горна баня
в.з.Килиите
в.з.Киноцентъра
в.з.Киноцентъра 3 част
в.з.Люлин
в.з.Малинова долина
в.з.Малинова долина - Герена
в.з.Симеоново - Драгалевци
в.з.Черния кос
гр. Банкя
гр. Бухово
гр. Нови Искър
ж.гр.Зоопарк
ж.гр.Южен парк
м-т Барите
м-т Батареята
м-т Гърдова глава
м-т Детски град
м-т Камбаните
м-т Киноцентъра
м-т Мала кория
м-т Подлозище
м-т Щъркелово гнездо
м-т Юбилейна гора
м-т яз. Искър
м-т Яладжа
с. Балша
с. Бистрица
с. Бусманци
с. Владая
с. Войнеговци
с. Волуяк
с. Герман
с. Горни Богров
с. Доброславци
с. Долни Богров
с. Долни Пасарел
с. Железница
с. Желява
с. Житен
с. Иваняне
с. Казичене
с. Клисура
с. Кокаляне
с. Кривина
с. Кубратово
с. Кътина
с. Лозен
с. Локорско
с. Мало Бучино
с. Мировяне
с. Мрамор
с. Мърчаево
с. Негован
с. Панчарево
с. Плана
с. Подгумер
с. Световрачене
с. Чепинци
с. Яна
4
1-СТАЕН
2-СТАЕН
3-СТАЕН
4-СТАЕН
МНОГОСТАЕН
МЕЗОНЕТ
ОФИС
АТЕЛИЕ, ТАВАН
ЕТАЖ ОТ КЪЩА
КЪЩА
ВИЛА
МАГАЗИН
ЗАВЕДЕНИЕ
СКЛАД
ГАРАЖ, ПАРКОМЯСТО
ПРОМ. ПОМЕЩЕНИЕ
ХОТЕЛ
ПАРЦЕЛ
ЗЕМЕДЕЛСКА ЗЕМЯ
БИЗНЕС ИМОТ
град Благоевград
град Бургас
град Варна
град Велико Търново
град Видин
град Враца
град Габрово
град Добрич
град Кърджали
град Кюстендил
град Ловеч
град Монтана
град Пазарджик
град Перник
град Плевен
град Пловдив
град Разград
град Русе
град Силистра
град Сливен
град Смолян
град София
град Стара Загора
град Търговище
град Хасково
град Шумен
град Ямбол
7-ми 11-ти километър
Абдовица
Банишора
Белите брези
Бенковски
Борово
Ботунец
Ботунец 2
Бояна
Бъкстон
Витоша
Военна рампа
Враждебна
Връбница 1
Връбница 2
Гевгелийски
Гео Милев
Горна баня
Горубляне
Гоце Делчев
Градина
Дианабад
Димитър Миленков
Докторски паметник
Драгалевци
Дружба 1
Дружба 2
Дървеница
Експериментален
Западен парк
Захарна фабрика
Зона Б-18
Зона Б-19
Зона Б-5
Зона Б-5-3
Иван Вазов
Изгрев
Изток
Илинден
Илиянци
Карпузица
Княжево
Красна поляна 1
Красна поляна 2
Красна поляна 3
Красно село
Кремиковци
Кръстова вада
Лагера
Левски
Левски В
Левски Г
Летище София
Лозенец
Люлин - център
Люлин 1
Люлин 10
Люлин 2
Люлин 3
Люлин 4
Люлин 5
Люлин 6
Люлин 7
Люлин 8
Люлин 9
Малашевци
Малинова долина
Манастирски ливади
Медицинска академия
Младост 1
Младост 1А
Младост 2
Младост 3
Младост 4
Модерно предградие
Мусагеница
Надежда 1
Надежда 2
Надежда 3
Надежда 4
НПЗ Изток
НПЗ Искър
НПЗ Средец
НПЗ Хаджи Димитър
Обеля
Обеля 1
Обеля 2
Оборище
Овча купел
Овча купел 1
Овча купел 2
Орландовци
Павлово
ПЗ Илиянци
ПЗ Хладилника
Подуяне
Полигона
Разсадника
Редута
Република
Република 2
Света Троица
Свобода
Сердика
Сеславци
Симеоново
Славия
Слатина
СПЗ Модерно предградие
СПЗ Слатина
Стрелбище
Студентски град
Сухата река
Суходол
Толстой
Требич
Триъгълника
Факултета
Филиповци
Фондови жилища
Хаджи Димитър
Хиподрума
Хладилника
Христо Ботев
Център
Челопечене
Яворов
в.з.Американски колеж
в.з.Беловодски път
в.з.Бояна
в.з.Бункера
в.з.Врана - Герман
в.з.Врана - Лозен
в.з.Горна баня
в.з.Килиите
в.з.Киноцентъра
в.з.Киноцентъра 3 част
в.з.Люлин
в.з.Малинова долина
в.з.Малинова долина - Герена
в.з.Симеоново - Драгалевци
в.з.Черния кос
гр. Банкя
гр. Бухово
гр. Нови Искър
ж.гр.Зоопарк
ж.гр.Южен парк
м-т Барите
м-т Батареята
м-т Гърдова глава
м-т Детски град
м-т Камбаните
м-т Киноцентъра
м-т Мала кория
м-т Подлозище
м-т Щъркелово гнездо
м-т Юбилейна гора
м-т яз. Искър
м-т Яладжа
с. Балша
с. Бистрица
с. Бусманци
с. Владая
с. Войнеговци
с. Волуяк
с. Герман
с. Горни Богров
с. Доброславци
с. Долни Богров
с. Долни Пасарел
с. Железница
с. Желява
с. Житен
с. Иваняне
с. Казичене
с. Клисура
с. Кокаляне
с. Кривина
с. Кубратово
с. Кътина
с. Лозен
с. Локорско
с. Мало Бучино
с. Мировяне
с. Мрамор
с. Мърчаево
с. Негован
с. Панчарево
с. Плана
с. Подгумер
с. Световрачене
с. Чепинци
с. Яна
Откажи
OK
Цена на имота
Цена на кв.м.
Наем на имота
Цена/Год.наем
Брой оферти
Брой търсения
Разглеждания
1 месец
1 година
3 години
21 години
и 10 месеца
Добави/редактирай
вид имот и район
*Средните цени са определени чрез
медиана стойност
.
Виж още
имоти от София
или
още Двустайни Апартаменти в София
Още обяви в imot.bg от ХОУМ ТУ Ю БЪЛГАРИЯ
Виж всички
Продава 2-СТАЕН
225 000 €
440 061.75 лв.
(67 кв.м)
град София Малинова долина
Продава 2-СТАЕН
186 300 €
364 371.13 лв.
(81 кв.м)
град София Овча купел
Продава 2-СТАЕН
216 990 €
424 395.55 лв.
(65 кв.м)
град София Витоша
Продава 2-СТАЕН
194 990 €
381 367.29 лв.
(67 кв.м)
град София Манастирски ливади
КОНТАКТИ
|
SMS КОДОВЕ
|
СТАТИСТИКА
|
ПОМОЩ
|
ОБЩИ УСЛОВИЯ
|
РЕКЛАМА
|
ТОП ОФЕРТА
|
Въпроси и предложения към imot.bg
Резон Медия
|
Имоти
|
Автомобили
|
Работа
|
Новини
|
Обяви
|
Преводи и легализация
2002-2025 ® Copyright imot.bg
Следвайте ни в: