Предимства на имота:
- ЛОКАЦИЯ: В близост до всичко - кв. Христо Смирненски, а именно на ул. 'Рая', в непосредствена близост до УСБАЛАГ 'Селена', Супермаркет 'Лекси' и СУ 'Св. св. Кирил и Методий'.
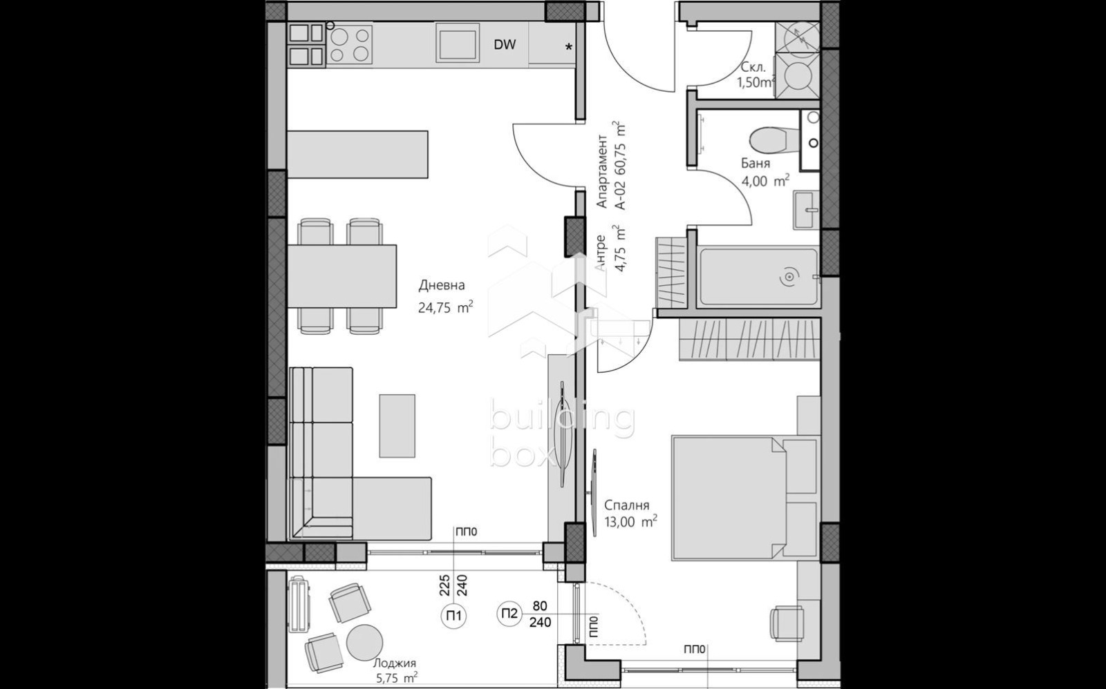
- РАЗПРЕДЕЛЕНИЕ: Голяма дневна с кухненски бокс, спалня, баня с тоалетна, склад, просторно входно антре и тераса.
- ЕТАЖНОСТ: 2-ри етаж от общо 10.
- ИЗЛОЖЕНИЕ: Югоизток.
- ОТОПЛЕНИЕ: Електричество.
- СТРОИТЕЛСТВО: Тухлена сграда пред АКТ 14.
- ДОПЪЛНИТЕЛНИ ПРЕДИМСТВА: Премиум строителство. Качество без компромиси.
БИЛДИНГ БОКС предоставя безплатна консултация и съдействие при финансиране на избрания от Вас имот.
Оферта 25954
Виж всички обяви в buildingbox.bazar.bg или тук







