Намира се на трети етаж в сграда с контрол на достъпа, асансьор, видеонаблюдение и озеленен двор.
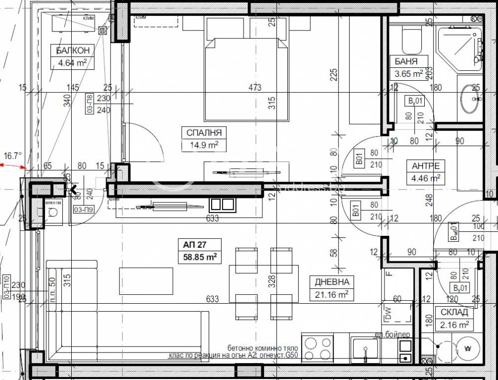
Жилището е в състояние на шпакловка и замазка и се отоплява на газ.
Имотът е 68 кв. с общи части и с 59 чиста площ.
Възможност за довършване 'до ключ' .
Намира се точно до British School и комплекс Сите Жарден на ул. Георги Райчев
Чисто нова сграда в кв. Витоша!
Гледка към Витоша!
Обади се сега и цитирай този код 666200
Виж всички обяви в address.bazar.bg или тук







