В близост за разположени търговски обекти, медицински университет, болница,детска градина, МОЛ Пловдив, спирки на градски транспорт.
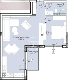
Жилището е ситуирано на 1-ви етаж и е с площ от 76 кв.м. със следното практично разпределение: дневна с кухненски бокс, спалня, баня с тоалетна, тераса.
Отоплението е електричество.
Има възможност за закупуване на надземно или подземно паркомясто или гараж.
Предлага се на шпакловка и замазка за да може да се превърне във мечтания от Вас дом!
За оглед на това и други атрактивни предложения, не се колебайте да ни потърсите на посочения телефон или да ни изпратите данните си чрез формата за запитване на сайта.
Референтен номер: 1118
Виж всички обяви в titanplovdiv.bazar.bg или тук







