Translations in other languages:
All real estate ads published on imot.bg have been translated into English and published on the partner site
Получихте нова обява по филтър





Промяна на цена на наблюдавана обява


стара цена
нова цена
imot.bg – обяви за продажби и наеми на имоти
Сайт за имоти №1
Начало Публикуване Търсене Нови сгради Агенции Новини Кредити + Още... Моят имот
Продава 2-СТАЕН
град София, Манастирски ливади
195 000 €
381 386.85 лв.

(2 826 €, 5 527.18 лв./m2)
Цената е с включено ДДС
Публикувана в 18:00 на 24 септември, 2025 год.
Обявата е посетена 651 пъти.
Площ:
69 m2
Етаж:
8-ми от 9
Газ:
НЕ
ТEЦ:
НЕ
Строителство:
Тухла, Въведен в експлоатация 2025 г.

Описание на имота:

LUXIMMO FINEST ESTATES: www.luximmo.bg
Представяме комфортен двустаен апартамент за продажба в модерна нова сграда с отличителна визия, отлична локация и удобства в кв. 'Манастирски ливади - Изток'.

Сградата е с Акт 15!

Разполага с обособена зона за отдих и зелени площи, като достъпът до вътрешния двор е контролиран и ограничен. Апартаментите са обособени в четири входа. На всеки етаж има между 3 и 6 жилища с цел запазване на максимална самостоятелност, тишина и спокойствие.

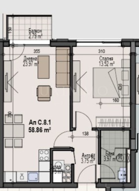
Имотът се намира на 8-ми етаж и има чиста площ 58.86 кв.м.

Разпределение:
антре;
складово помещение;
баня/тоалетна;
дневна с кухня;
спалня;
тераса.
Изложение - запад.

Предлага се в степен на завършеност по БДС, с висококачествена дограма Rehau и блиндирана входна врата.

Към апартамента има складово помещение.

Предлага се подземно паркомясто на стойност 35 000 EUR (68 454 лв.).

Локация

Местоположението комбинира по уникален начин панорамната гледка към Витоша, спокойствието и чистия въз... Виж повече
Виж всички обяви на агенцията в luximmo.bazar.bg или тук.
Особености:
• Тухла
• Асансьор
• Контрол на достъпа
• С паркинг
 


За контакти:  0884031856
Брокер: Инна Дочева

Телефон: 0884 031 856

Още оферти от брокера: продава | дава под наем | купува | наема
Изпрати запитване:
 
Вашето съобщение (до 1000 символа):
Вашето име: Вашия мобилен телефон:

Вашия E-mail:  
Изпрати Е-mail
Съгласявам се с общите условия и политики за защита на личните данни
Агенция: ЛУКСИММО

http://luximmo.imot.bg

Още оферти: продава | дава под наем | купува | наема

Адрес: област София, гр. София, бул. 'Черни връх' 51-Г, етаж 7 (офис сграда Realtons Place)
Тел.: 02 9 11 55; 0883 888 888
http://www.luximmo.bg

Продава 2-СТАЕН
град София, Манастирски ливади
Обява: 1b175872600283845

195 000 €
381 386.85 лв.
(2 826 €, 5 527.18 лв./m2)

Цената е с включено ДДС
 

Местоположение: град София, Манастирски ливади

Допълнителни данни за имотите в района и сравнение с други райони: Търсене в АРХИВ 2013 - 2025 г.











Добави/редактирай
вид имот и район
*Средните цени са определени чрез медиана стойност.

КОНТАКТИ | SMS КОДОВЕ | СТАТИСТИКА | ПОМОЩ | ОБЩИ УСЛОВИЯ | РЕКЛАМА | ТОП ОФЕРТА | Въпроси и предложения към imot.bg
Резон Медия | Имоти | Автомобили | Работа | Новини | Обяви | Преводи и легализация 2002-2025 ® Copyright imot.bg
Следвайте ни в: