Реф. номер: 1667
НОВА МОДЕРНА СГРАДА!
Предлагаме Ви закупите ДВУСТАЕН АПАРТАМЕНТ в новострояща се ниска сграда пред акт 14 на 4 етажа в кв. Остромила!
Основни характеристики на имота:
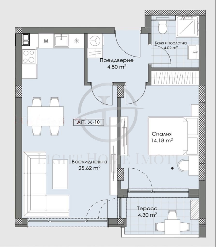
- Площ: 73кв.м
- Разпределение: Просторен хол с кухненски бокс, голяма спалня, баня с тоалетна, входно антре и тераса!
- Вид строителлство: Ново, Тухла
- Изложение : ЮГ
- Етажност: 3 от 4
- Паркиране: Възможност за закупуване на паркомясто.
Състояние на имота: Имотът ще бъде издаден на степен на завършеност: шпакловка и замазка, ВиК на тапа, цялостно окабеляване и поставена входна блиндирана врата, което ви дава възможност да го довършите и обзаведете по ваш собствен вкус!
Локация: Намира се на тиха и спокойна локация, в близост до училища, детски градини, магазини, удобни връзки на градския транспорт и всичко необходимо за комфортен начин на живот!
За повече информация и организиране на огледи, моля, свържете се с нас на посочения номер, като ще Ви е необходим следният референтен номер: 1667
Лайт Хоум имоти е доверен партньор на най-големите банкови институции в страната и съдейства за преференциални условия при нужда от кредитиране. Ще получите юридическо съдействие през целия процес на сделката, както и съдействие при подготовка, подаване и получаване на всички необходими документи за сделката.
Виж всички обяви в lighthomeimoti.bazar.bg или тук







