🏡 Просторен двустаен апартамент в новострояща се сграда кв. Възраждане 3, Варна
Представяме ви отлична възможност за инвестиция или нов дом апартамент с площ от 63,58 кв.м, разположен в модерна сграда в процес на изграждане, ситуиран в търсения квартал Възраждане 3.
✨ Характеристики на имота:
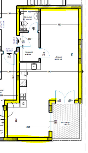
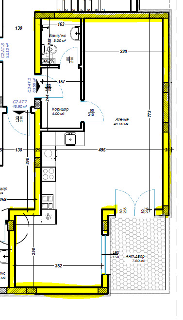
Площ: 63,58 кв.м
Разпределение:
Просторна дневна с кухненска зона 41.08 кв.м
Баня с тоалетна 3.кв.м
Входно антре 4 кв.м
Тераса (тип английски двор ) 7.8 кв.м
Състояние: по БДС (шпакловка, замазка, ВиК и ел. инсталации до тапа)
Асансьор: да
Паркомясто: възможност за закупуване на паркомясто или гараж
Срок за завършване: декември 2026 г.
🏗️ За сградата:
Модерен архитектурен дизайн
Висококачествено и енергийно ефективно строителство
Луксозно завършени общи части
Контролиран достъп и сигурност
📍 Локация:
Спокоен и озеленен район с отлични комуникации
Подходящ както за лично ползване, така и за отдаване под наем
Имот 371500
Виж всички обяви в imotipremier.bazar.bg или тук







