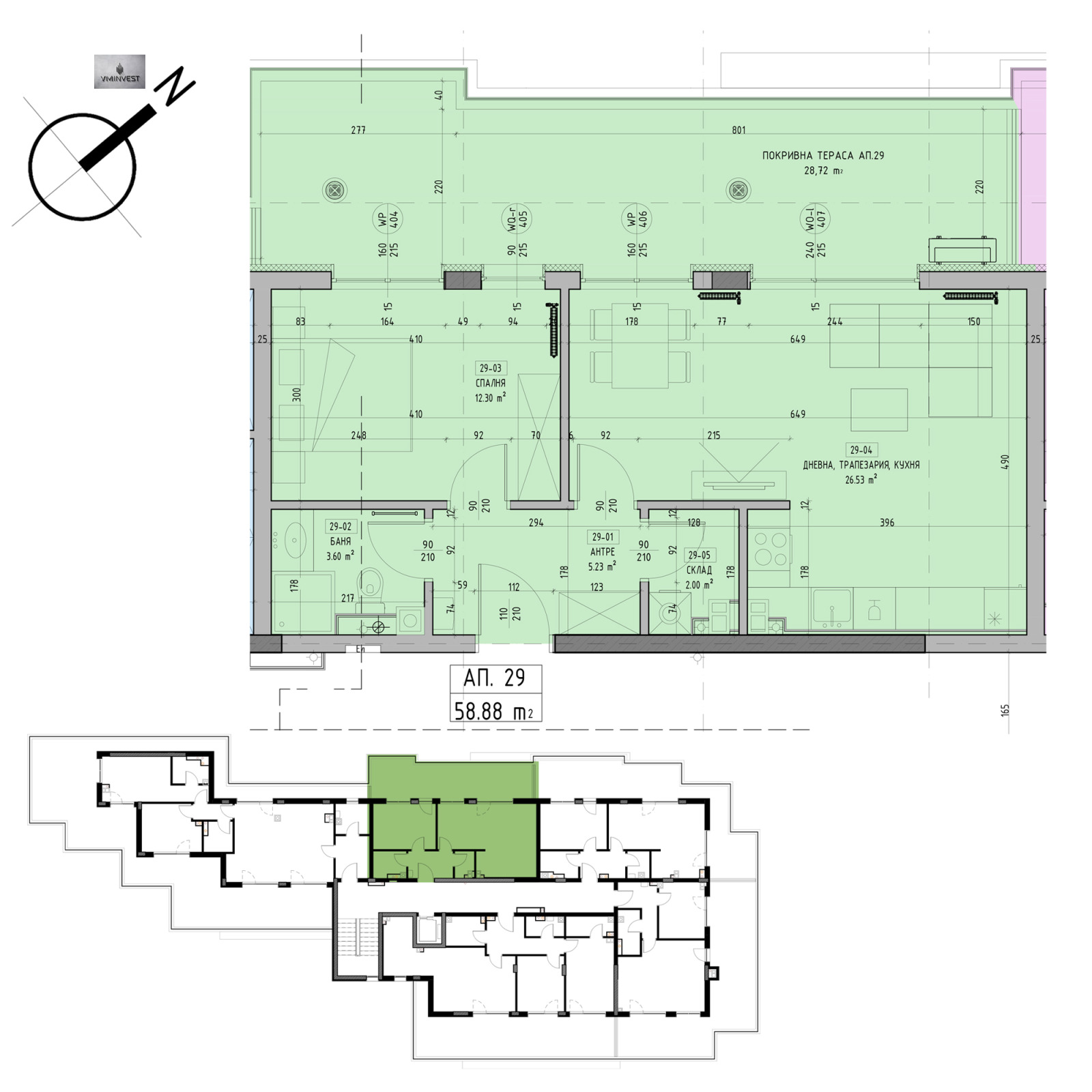
Апартаментът /Ап.29/ е с площ от 70,25 кв.м. и е на четвърти етаж.
Разпределение: входно антре /5,23 кв.м./, дневна с кухненски бокс /26,53 кв.м./, спалня /12,30 кв.м./, баня с тоалетна /3,60 кв.м./, склад /2,00 кв.м./ и покривна тераса /28,72 кв.м./.
Има възможност за закупуване на паркоместа /от 20000 евро/, както и гаражи /от 31000 евро/.
'СРЕДЕЦ' разполага с общо 32 апартамента, 22 подземни гаража и паркоместа и 10 надземни паркоместа. Всяко жилище е проектирано с внимание към детайла и предлага просторни, светли помещения с функционални и отворени планове, които създават усещане за простор и комфорт и позволяват обединяване на съседни имоти.
Сградата е с богато озеленено пространство, с ниско енергийно потребление и минимален отпечатък върху околната среда.
Компанията ни може да ви съдейства за кредитно посредничество, ако сте предвидили плащания чрез ипотечен и/или потребителски кредит.
Като наши клиенти имате възможността да се възползвате от безплатно кредитно консултиране. Ще получите най-добрите оферти, съобразени с вашия личен профил и предпочитания, при преференциални условия.
Научете повече на: www.vminvest.bg
Виж всички обяви в vmi_invest.bazar.bg или тук







