-ЛОКАЦИЯТА: Локацията позволява удобства на живущите, възможност за отдаване под наем, благодарение на близостта до главните пътни артерии и големи вериги на хранителни магазини, учебни заведения, спирки на градски транспорт и други удобства. Сградата ще се намира на крачки от новоизградения парк 'Възраждане'.
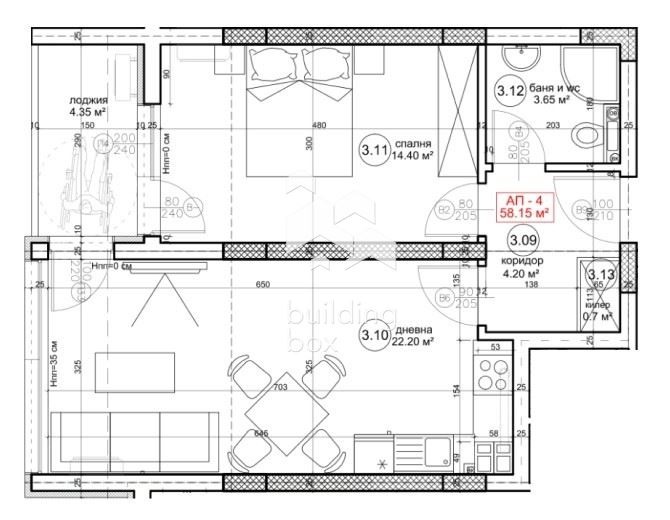
-РАЗПРЕДЕЛЕНИЕ: Апартаментът се състои от всекидневна с кухненски бокс - 22.20 кв.м., спалня 14.40 кв.м., тераса, баня с тоалетна, килер, коридор.
-ЕТАЖНОСТ: Етаж 3 от общо 13
-ОТОПЛЕНИЕ: Електричество
-ИЗЛОЖЕНИЕ: Запад
-СТРОИТЕЛСТВО: Тухла.
-ПАРКИРАНЕ : Към имота има възможност да се закупи паркомясто;
-СГРАДА: Сградата е с разрешение за строеж. Очаква се Акт 16 - 2028 година
-ИНВЕСТИТОР: Инвеститорът е показал история на вече завършени имоти, които могат да бъдат разгледани като начин на изпълнение, качество, външен вид и стил.
Билдинг Бокс предлага безплатна консултация и съдействие при финансиране на избрания от Вас имот
Оферта 25399
Виж всички обяви в buildingbox.bazar.bg или тук







