БУЛ ИМОТ София Ви предлага практичен двустаен апартамент в нова сграда с Акт 16, който е еднакво подходящ както за живеене, така и за инвестиция. Сградата е разположена на тиха улица до нова детска градина, в непосредствена близост до НСА, спирки на автобуси 94, 102, 280, 805 и бъдещата метростанция НСА.
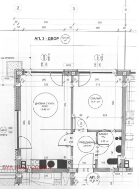
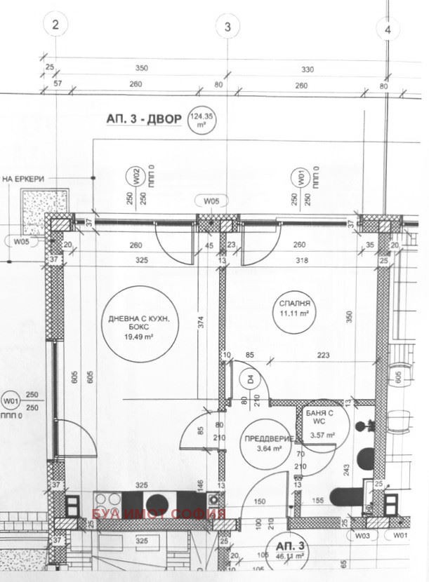
Апартаментът е с обща застроена площ от 56 кв.м. и чиста площ от 46 кв.м., намира се на първи етаж от четири и е с отопление на газ, като във всяка стая са предвидени изводи за климатици. Големият озеленен двор от 124 кв.м. превръща жилището в истински оазис.
Вътрешното разпределение включва всекидневна с кухненски бокс, една спалня, баня с тоалетна, антре и двор. Жилището е непроходно и предлага удобство и функционалност.
Към имота се предлагат и възможности за паркиране паркомясто на цена 25 000 евро или гараж за 30 000 евро.
📞 За повече информация и огледи: 0899 203 020 | Оферта: 15145
Виж всички обяви в bulimotsofia.bazar.bg или тук







