БИЛДИНГ БОКС продава двустаен апартамент в новострояща се сграда в близост до УМБАЛ Св.Марина.
Предимства на имота :
ЛОКАЦИЯ: Сградата е разположена на 350 метра от бул.Христо Смирненски, локация гарантираща комуникативност и спокойствие едновременно, далеч от шумните улици.
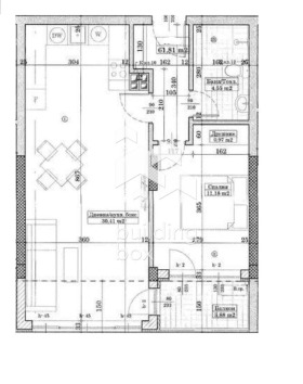
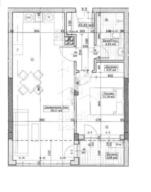
РАЗПРЕДЕЛЕНИЕ: Жилището се състои от дневна стая с кухненски бокс, спалня с дрешник, баня с тоалетна, входно антре, килерна ниша и тераса.
ЕТАЖНОСТ: Жилището е ситуирано на етаж 6 от общо 11.
ОТОПЛЕНИЕ: Електричество
ИЗЛОЖЕНИЕ: Юг
ПАРКИРАНЕ: На полуподземното ниво са планирани 22 паркоместа, а допълнително в сутерена има още 32 паркоместа.
СГРАДА: Сградата е удобно разположена, така че всички жилища да разполагат с достатъчно пространство и светлина. Проектирани са апартаменти с правилни форми и максимално функционално разпределение на помещенията. Предвижда се изчистена красива фасада изпълнена с висококачествени материали.
ЕТАП НА СТРОИТЕЛСТВО: Сградата е с Акт 14.
СТРОИТЕЛ: Изпълнител е строителна фирма с проекти с РЗП общо над 33 500 кв.м., доказана на строителния пазар с портфолио от над 15 обекта, които могат да бъдат разгледани по всяко време като стил, качество и начин на изпълнение.
Билдинг Бокс предоставя безплатна консултация и съдействие при финансиране на избрания от Вас имот.
Оферта 10156
Виж всички обяви в buildingbox.bazar.bg или тук







