БИЛДИНГ БОКС предлага за продажба двустаен апартамент в сграда, разположена непосредствено зад комплекс Макси в кв. Витоша. Сградата е в етап Акт 14, като завършване с Акт 16 се очаква до април 2026 г.
Сградата ще бъде изпълнена с висококачествени материали минерална мазилка, 15 см топлоизолация, асансьори Orona. Апартаментите ще се предават на шпакловка и замазка, с изводи на тапа.
В сградата се предлагат подземни паркоместа на цена от 30 000 евро.
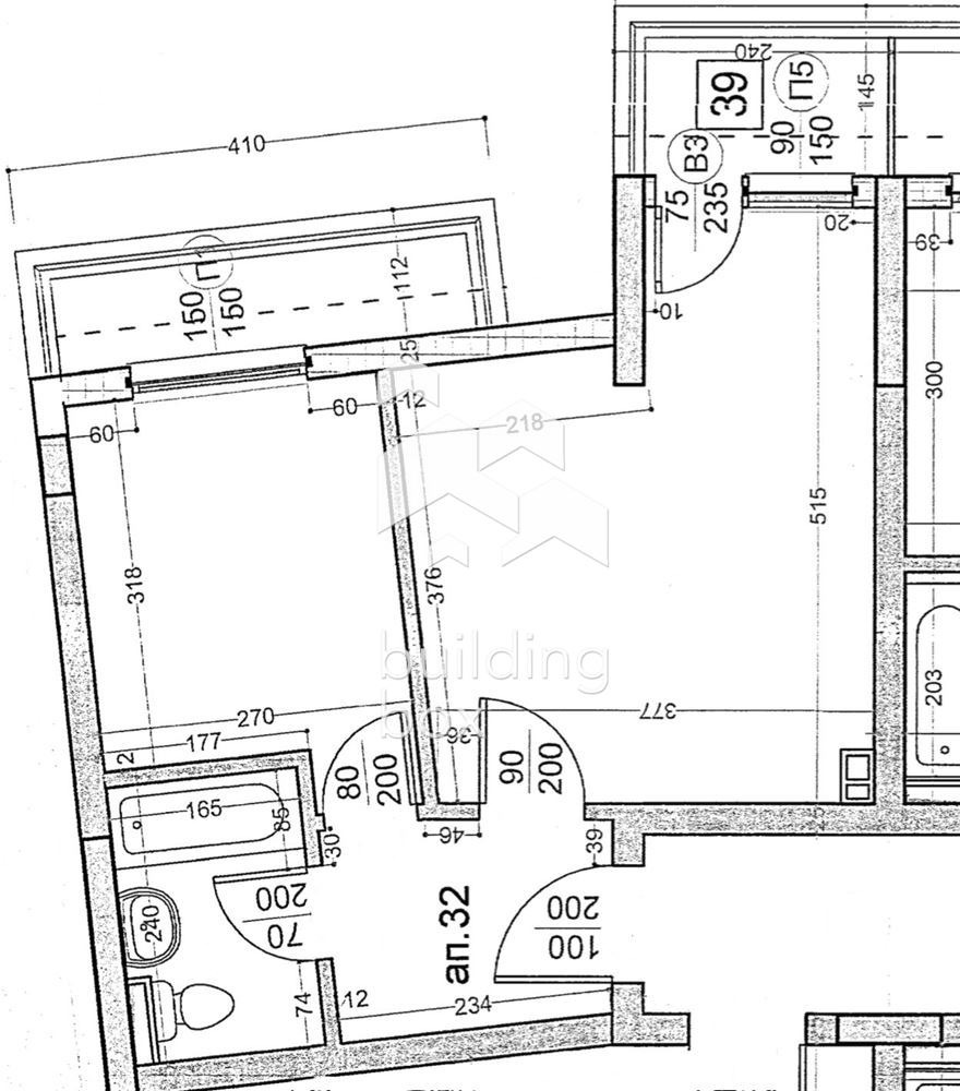
За имота (Ап. 32):
Апартаментът се намира на последния пети етаж и предлага 41,30 кв.м светла площ и 48,48 кв.м обща площ. Изложението е западно с панорамна гледка към Витоша.
Състои се от входно антре, хол с кухня и трапезария, баня с тоалетна и две тераси една с излаз от дневната и една от спалнята.
БИЛДИНГ БОКС предоставя безплатна консултация и съдействие при финансиране на избрания от Вас имот.
Оферта 24443
Виж всички обяви в buildingbox.bazar.bg или тук







