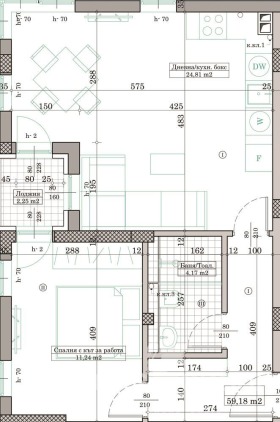
Чиста площ на жилището: 59,18 м²
Обща площ: 67,39 м²
Дневен тракт: 24,81 м²
Спалня : 11,25 м²
Баня : 4,17 м²
Лоджия: 2,25м²
Изложение: северозапад
реф.номер 13959
Опция за паркоместа външни и подземни
Цена 101 500 евро разсрочено плащане
За повече информация :Петя Маринова 088/222-477
Виж всички обяви в lionsgroup.bazar.bg или тук







