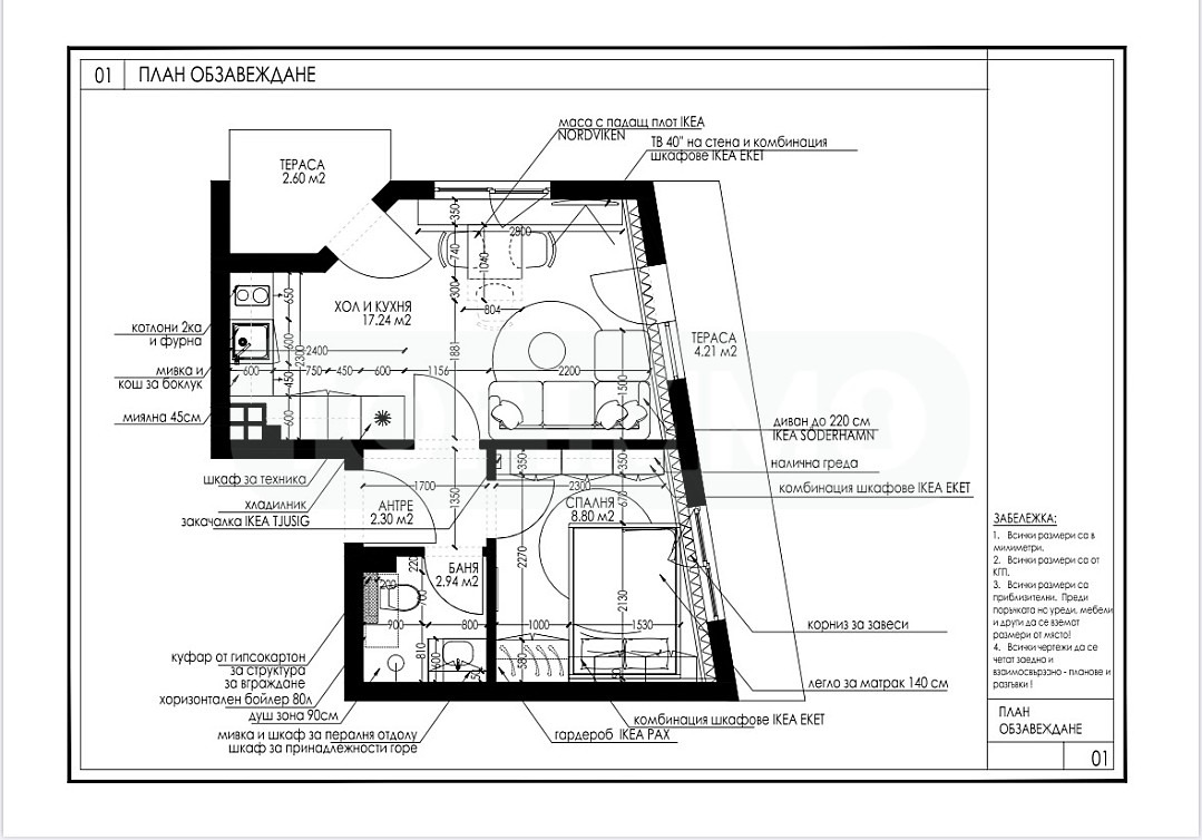
Разпределение: Антре, дневна с кухненска част, спалня, две тераси към дневната, баня с толетна заедно. Апартаментът е функционален, подходящ е и за инвестиция. Компактен е с ясно обособени зони за дневна и спалня.
Сградата е пред Акт 16, който се очаква да влезе в сила през ноември 2025 г.
Апартаментът се продава по БДС, което дава възможност да го завършите по ваш вкус.
Предлага се с готов проект с интериорно решение и точни размери, професионален 3D тур. Това ви дава предварителна визия какво ще представлява жилището в завършен вид.
Снимките са илюстративни!
Използвайки нашите услуги за покупката на новия си дом ще получите съдействие и БЕЗПЛАТНА професионална консултация от наш кредитен консултант.
Можем да организираме оглед в удобно за вас време, свържете се с нас! Референтен номер: RM-4299
Виж всички обяви в topimmo.bazar.bg или тук
        
       
         
         
         
         
         
         
         
         
         
         
         
             
             
             
             
             
             
             
             
             
             
            






