✅ АКТ 14!
✅ ИЗЛОЖЕНИЕ - ИЗТОК-ЗАПАД!
✅ АКТ 16 - до края на 2025 г!
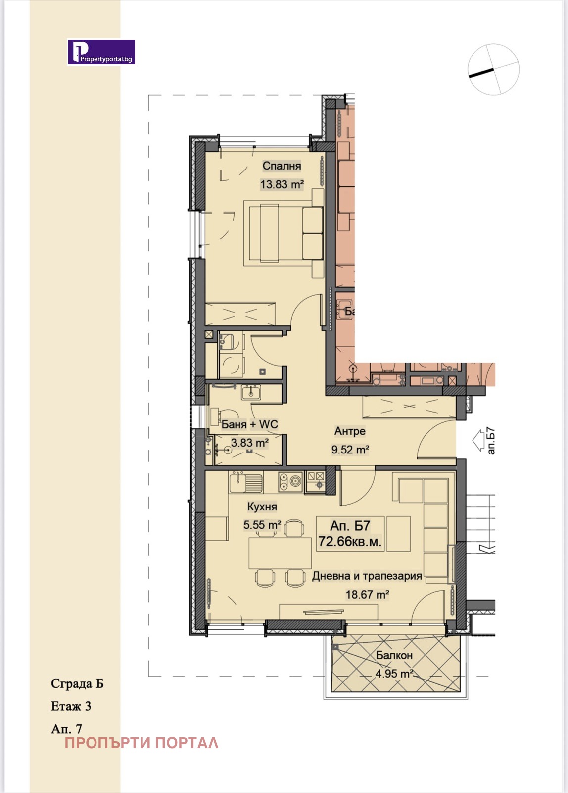
🔹 Разпределение: антре, просторен хол с кухненски бокс, спалня, баня, мокро помещение и тераса.
🔹 Агенция за недвижими имоти Пропърти Портал предага двустаен апартамент на 3 ти етаж в сграда Б.
🔹 Към апартамента се предлага подземен гараж на цена от 35 000 евро с ДДС.
📍 кв. СИМЕОНОВО, град София.
🏡 Нов затворен комплекс от 5 жилищни сгради с нискоетажно строителство до Ринг Мол, Икеа и бъдеща метростанция.
💰Схема на плащане 40/50/10.
🏠Избор на двустайни, тристайни и многостайни апартаменти със собствени озеленени дворове или панорамни гледки към Витоша и София.
🌳7500 кв.м. естествена паркова среда, на тихо и спокойно място!
🎬Лятно кино, детски площадки 🛝, екстериорен фитнес🏋️♀️ и парк за домашни любимци.
🔑Сигурност за вашето семейство, контрол на достъп и видеонаблюдение!
В близост до станцията на кабинковия лифт 'Симеоново', 15 мин. от Бизнеспарк.
С удобен транспортен достъп до всички части на града през Околовръстен път.
Проектът съчетава успешно модерна визия, лукс, качествено строителство.
Предвидено е използването на висококачествени материали, енергийно и топло ефективни.
Степен на завършеност: шпакловка и замазка, алуминиева дограма Altest WDS 70 RAL 7016, стъклопакет 3 стъкла, външни, електрически ролетни щори RAL 7016, газова инсталация с монтирани радиатори и газово котле Rinnai ZEN 24, поставен инверторен климатик Olimpia Splendid, видеодомофон, блиндирана врата.
Опция, срещу допълнително заплащане комарници
Виж всички обяви в propertyportal.bazar.bg или тук







