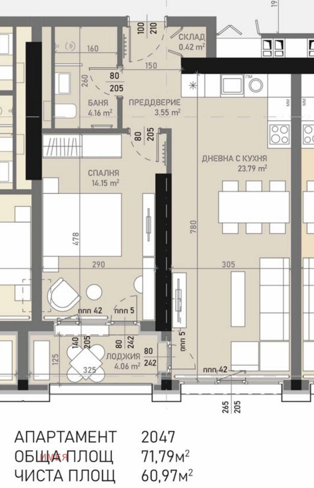
За апартамента: Апартаментът е с чудесни параметри като площ, етаж, разпределение и изложение. Намира се на етаж 4 от 18, площта му е 71 кв.м., състои се от антре, дневна с кухненски бокс и трапезария, отделно спалня, баня с тоал., склад и балкон-лоджия с излаз и от дневната, и от спалнята. Едностранно югозападно изложение с хубава гледка. Просторен, топъл, светъл, вътрешен апартамент. На шпакловка и замазка с висок клас ПВЦ дограма. Отопление: ТЕЦ. Пред акт 16.
За комплекса: Комплексът се намира на централно място в София, състои се от 7 сгради, разположени върху парцел от 30 дка, от които 12 дка е парк. Сградите са построени със съвременни строителни материали и технологии и висок клас енергийна ефективност. Комплексът се отличава с много простор, светлина и зеленина, гледки към Витоша, широки алеи, спортна зона, басейн, обезопасени детски кътове, множество търговски обекти, контрол на достъпа, видеонаблюдение и др. ИМЕЯ.
Виж всички обяви в imeia.bazar.bg или тук







