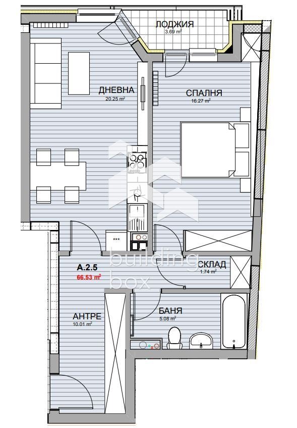
Застроената площ на имота е 66.53 кв.м и се състои от антре, дневна с кухненски бокс, спалня, баня с тоалетна, склад и тераса.
Апартаментът се намира на втори етаж от общо седем. Отоплението е предвидено на ТЕЦ. Изложението е изток.
Бутикова сграда, разполагаща с апартаменти, търговски обекти, подземни и надземни паркоместа. В проекта са заложени апартаменти с функционални разпределения, благоприятни изложения и минимализиран процент общи части.
Сградата е след Акт 14 и ще бъде завършена през 2026г.
Инвеститорът е с дългогодишен опит, има повече от 10 завършени сгради с обща застроена площ над 80 000 кв.м, както в столицата, така и по черноморски и планински курорти.
В близост до бул. България , бул. Цар Борис III и бул. Гоце Делчев , което осигурява бърз достъп до централната част на столицата и останалите райони на града. Местоположението на сградата е перфектно обезпечено от спирки на градски транспорт - на 200 м от метростанция Красно село , на 300 м от спирки на тролеи, трамваи и автобуси.
В непосредствена близост има детски градини, училища, множество търговски обекти, пазар Красно село , ресторанти, заведения за бързо хранене и разнообразие от магазини за всички нужди на един човек.
БИЛДИНГ БОКС предоставя безплатна консултация и съдействие при финансиране на избрания от Вас имот.
Оферта 7630
Виж всички обяви в buildingbox.bazar.bg или тук







