✅ Сграда на 10 етажа
✅ Издаден Акт 14
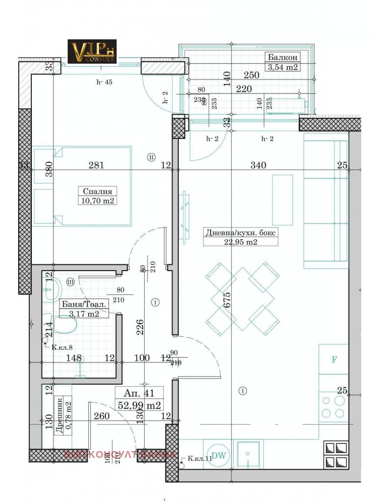
✅ Двустаен апартамент на 7-ти етаж
✅ Възможност за паркомясто от 20 000
📐 Функционално разпределение:
дневен тракт с кухненска част
спалня
баня/WC
балкон
📍 Локация: тих и комуникативен район, близо до спирки, училища и търговски обекти.
💰 Схема на плащане и възможност за кредитиране
Идеален вариант както за собствено жилище, така и за инвестиция.
Виж всички обяви в vipconsultvarna.bazar.bg или тук
        
       
         
         
         
         
         
         
             
             
             
             
             
            






